• Brent Goff, Assessor
  • Real Property Record
  • P.O. Box 20,000
  • 544 Rood Avenue
  • Grand Junction, CO 81502
This is an image of the Mesa County Logo with a picture of a monument Mesa County Home Page

Mesa County Assessor - Real Property Public Information Retrieval

Brent Goff, Assessor dataview Updated: 4/2/2026

Property Information(Report Date: 4/3/2026)


Parcel Number: 7008-040-96-032
Account Number: M081988
Property Use: Residential
Location Address: 3137 BROWNIE CIR #81
GRAND JUNCTION, CO 81504
Mailing Address: 3137 BROWNIE CIR UNIT 81
GRAND JUNCTION, CO 81504
Owner Name(s): APPLEWOOD MOBILE ESTATES INC
c/o LETICIA HERRERA RIOS
Joint Owner
Neighborhood: Applewood Estates MHP (777021.02)
Associated Parcel: 2943-103-24-001
Approx. Latitude: 39.080246
Approx. Longitude: -108.471069
Date of Aerial Photo: 2019 & 2024

Legal Description

16 X 76 96 LIBERTY 05L26144

Tax Information

YearProperty CodeLand ActualImprovements ActualTotal ActualTotal Assessed (School)Total Assessed (Non-School)TAC CodeMill Levy (School)Mill Levy (Non-School)Total Mill LevyWater AssessmentProperty Tax & Water
20251235$0$54,690$54,690$3,860$3,4201560242.218028.462070.6800$0.00$260.30
20241235$0$14,920$14,920N/A$1,00015602N/AN/A74.7740$0.00$74.77

Taxing Authority Detail

YearAgency NameAgency Abbrev.TAC CodeMill LevyTotal (Assessed)Tax Per Agency
2025CLIFTON FIRE PROTECTIONCFD15602 11.5520 $3,420 $39.51
2025CLIFTON SANITATION DISTCFSD15602 0.0000 $3,420 $0.00
2025CLIFTON WATER DISTRICTCWD15602 0.0000 $3,420 $0.00
2025COLORADO RIVER WATER CONSERVATIONCOLRW15602 0.5020 $3,420 $1.72
2025COUNTY - DEVELOP DISABLEDMCCCB15602 0.2190 $3,420 $0.75
2025COUNTY CAPITAL EXPEND (INACTIVE)MCCAP15602 0.0000 $3,420 $0.00
2025COUNTY GENERAL FUNDMCGF15602 8.3130 $3,420 $28.43
2025COUNTY LEASE-PURCHASE JAIL (INACTIVE)MCLP15602 0.0000 $3,420 $0.00
2025COUNTY ROAD & BRIDGE-FULL LEVYMCR_B15602 0.2740 $3,420 $0.94
2025COUNTY TRANSLATOR TV FUNDMCTV15602 0.0280 $3,420 $0.10
2025GRAND RIVER MOSQUITO CTRLGRMCD15602 1.1820 $3,420 $4.04
2025GRAND VALLEY DRAINAGE DISTGVDD15602 1.6710 $3,420 $5.71
2025LIBRARY DISTRICTLIBR15602 2.9440 $3,420 $10.07
2025MESA COUNTY MCCNT15602 0.0000 $3,420 $0.00
2025SCHOOL DIST# 51 2004 OVERIDSD51O0615602 1.3270 $3,860 $5.12
2025SCHOOL DIST# 51 2017 OVERRIDESD51O_1715602 0.0000 $3,860 $0.00
2025SCHOOL DIST# 51 2024 OVERRIDESD51O_2415602 2.1570 $3,860 $8.33
2025SCHOOL DIST# 51 BONDSD51B15602 9.4760 $3,860 $36.58
2025SCHOOL DIST# 51 GENERALSD5115602 27.1260 $3,860 $104.71
2025SCHOOL DIST# 51 OVERRIDE 96SD51O15602 2.1320 $3,860 $8.23
2025SOCIAL SERVICESMCSS15602 1.6860 $3,420 $5.77
2025UPPER GRAND VALLEY PESTUP15602 0.0910 $3,420 $0.31
2025UTE WATER CONSERVANCYUTE15602 0.0000 $3,420 $0.00
 Tax Authority Contact Information Total Mill: 70.6800 Total Tax: $260.30

Sales & Conveyance Information **

DatePriceReception Number
(Click for Recorded Document)
Document Type
4/29/2024$0.003091799STMT_AUTHORITY
9/9/2011$11,400.002584268MHVTA
2/9/1996$10.000MH
  Search Clerk RecordsDocument Type Descriptions

Land Description

Photo 1 of 3

Loading Picture...

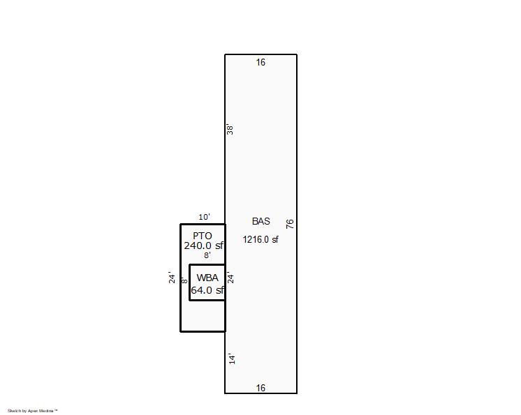
Building Sketch 1 of 1

Building Sketch 1

Loading Sketch...
  • Base Area(BAS) = 1216 sq.ft.
  • Patio(PTO) = 240 sq.ft.
  • Wood Deck,Balcony(WBA) = 64 sq.ft.
Building IDM081988MBL1.1735714800000
Model Description:Mobile Home
Building Use:MANUFAC HOUSING (1235)
Units:1
Arch Desc:SINGLE
Quality:AVERAGE QUALITY
Actual Year Built:1996
Effective Year Built:1996
Rooms:5
Bedrooms:3
Bathrooms:2 BATH
Heat Type:FORCED AIR HEAT
Heat Fuel:GAS
Heated SQ. FT.:1216
Air Conditioning:NONE
Frame:STEEL
Interior Wall:WALL BD OR WOOD
Exterior Wall:WOOD SIDING
Roof Cover:ASPH/COMP SHNGL
Roof Structure:GABLE OR HIP
Style:FACTORY BUILT
Stories:1
Comm. Wall Height:N/A
Comm. Fixtures:N/A

There are no Miscellaneous items associated with this record

Historical Information