• Brent Goff, Assessor
  • Real Property Record
  • P.O. Box 20,000
  • 544 Rood Avenue
  • Grand Junction, CO 81502
This is an image of the Mesa County Logo with a picture of a monument Mesa County Home Page

Mesa County Assessor - Real Property Public Information Retrieval

Brent Goff, Assessor dataview Updated: 3/31/2026

Property Information(Report Date: 4/1/2026)


Parcel Number: 7008-055-02-996
Account Number: M084354
Property Use: Residential
Location Address: 424 32 RD #59
CLIFTON, CO 81520
Mailing Address: 424 32 RD UNIT 279
CLIFTON, CO 81520
Owner Name(s): GRANITE CANDLEWOOD PARK LLC
Joint Owner
Neighborhood: Candlewood MHP (777021.03)
Associated Parcel: 2943-143-04-004
Approx. Latitude: 39.065225
Approx. Longitude: -108.456357
Date of Aerial Photo: 2019 & 2024

Legal Description

1971 NEW MOON 61 X 12 GA226019

Tax Information

YearProperty CodeLand ActualImprovements ActualTotal ActualTotal Assessed (School)Total Assessed (Non-School)TAC CodeMill Levy (School)Mill Levy (Non-School)Total Mill LevyWater AssessmentProperty Tax & Water
20259290$0$15,540$15,540$1,100$9701560242.218028.462070.6800$0.00$74.05
20249290$0$6,610$6,610N/A$44015602N/AN/A74.7740$0.00$32.90

Taxing Authority Detail

YearAgency NameAgency Abbrev.TAC CodeMill LevyTotal (Assessed)Tax Per Agency
2025CLIFTON FIRE PROTECTIONCFD15602 11.5520 $970 $11.21
2025CLIFTON SANITATION DISTCFSD15602 0.0000 $970 $0.00
2025CLIFTON WATER DISTRICTCWD15602 0.0000 $970 $0.00
2025COLORADO RIVER WATER CONSERVATIONCOLRW15602 0.5020 $970 $0.49
2025COUNTY - DEVELOP DISABLEDMCCCB15602 0.2190 $970 $0.21
2025COUNTY CAPITAL EXPEND (INACTIVE)MCCAP15602 0.0000 $970 $0.00
2025COUNTY GENERAL FUNDMCGF15602 8.3130 $970 $8.06
2025COUNTY LEASE-PURCHASE JAIL (INACTIVE)MCLP15602 0.0000 $970 $0.00
2025COUNTY ROAD & BRIDGE-FULL LEVYMCR_B15602 0.2740 $970 $0.27
2025COUNTY TRANSLATOR TV FUNDMCTV15602 0.0280 $970 $0.03
2025GRAND RIVER MOSQUITO CTRLGRMCD15602 1.1820 $970 $1.15
2025GRAND VALLEY DRAINAGE DISTGVDD15602 1.6710 $970 $1.62
2025LIBRARY DISTRICTLIBR15602 2.9440 $970 $2.86
2025MESA COUNTY MCCNT15602 0.0000 $970 $0.00
2025SCHOOL DIST# 51 2004 OVERIDSD51O0615602 1.3270 $1,100 $1.46
2025SCHOOL DIST# 51 2017 OVERRIDESD51O_1715602 0.0000 $1,100 $0.00
2025SCHOOL DIST# 51 2024 OVERRIDESD51O_2415602 2.1570 $1,100 $2.37
2025SCHOOL DIST# 51 BONDSD51B15602 9.4760 $1,100 $10.42
2025SCHOOL DIST# 51 GENERALSD5115602 27.1260 $1,100 $29.84
2025SCHOOL DIST# 51 OVERRIDE 96SD51O15602 2.1320 $1,100 $2.35
2025SOCIAL SERVICESMCSS15602 1.6860 $970 $1.64
2025UPPER GRAND VALLEY PESTUP15602 0.0910 $970 $0.09
2025UTE WATER CONSERVANCYUTE15602 0.0000 $970 $0.00
 Tax Authority Contact Information Total Mill: 70.6800 Total Tax: $74.05

Sales & Conveyance Information **

DatePriceReception Number
(Click for Recorded Document)
Document Type
7/22/2022$0.003038603MH
4/22/2004$10.000MH
  Search Clerk RecordsDocument Type Descriptions

Land Description

Photo 1 of 2

Loading Picture...

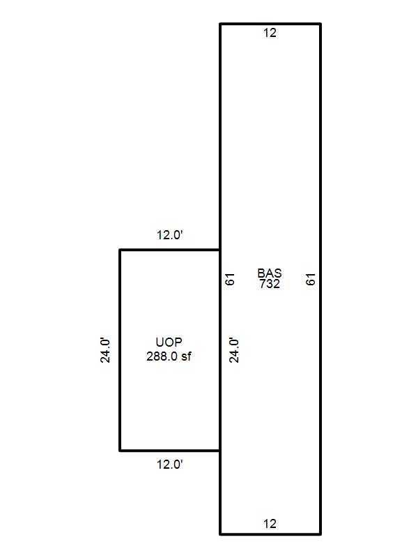
Building Sketch 1 of 1

Building Sketch 1

Loading Sketch...
  • Base Area(BAS) = 732 sq.ft.
  • Unfin Open Porch(UOP) = 288 sq.ft.
Building IDM084354MBL1.1724363285511
Model Description:Mobile Home
Building Use:MANUFAC HOUSING (1235)
Units:1
Arch Desc:SINGLE
Quality:BELOW AVERAGE QUALITY
Actual Year Built:1971
Effective Year Built:1971
Rooms:3
Bedrooms:2
Bathrooms:1 BATH
Heat Type:FORCED AIR HEAT
Heat Fuel:GAS
Heated SQ. FT.:732
Air Conditioning:ROOF TOP AIR
Frame:STEEL
Interior Wall:AVERAGE PANEL
Exterior Wall:CORROGATED MTL
Roof Cover:ROLLED COMP
Roof Structure:FLAT
Style:FACTORY BUILT
Stories:1
Comm. Wall Height:N/A
Comm. Fixtures:N/A

There are no Miscellaneous items associated with this record

Historical Information