• Brent Goff, Assessor
  • Real Property Record
  • P.O. Box 20,000
  • 544 Rood Avenue
  • Grand Junction, CO 81502
This is an image of the Mesa County Logo with a picture of a monument Mesa County Home Page

Mesa County Assessor - Real Property Public Information Retrieval

Brent Goff, Assessor dataview Updated: 10/25/2025

Property Information(Report Date: 10/26/2025)


Parcel Number: 7008-288-72-993
Account Number: M087068
Property Use: Residential
Location Address: 585 25 1/2 RD #5
GRAND JUNCTION, CO 81505
Mailing Address: 585 25 1/2 RD UNIT 5
GRAND JUNCTION, CO 81505
Owner Name(s): BARNES JACK FARRELL
Joint Owner BARNES DARRAH LYNN
Neighborhood: Paradise Valley MHP (777015.03)
Associated Parcel: 2945-102-00-100
Approx. Latitude: 39.089083
Approx. Longitude: -108.580454
Date of Aerial Photo: 2019 & 2024

Legal Description

80 WINDSOR 14 X 70 ZWK75146196

Tax Information

YearProperty CodeLand ActualImprovements ActualTotal ActualTotal Assessed (School)Total Assessed (Non-School)TAC CodeMill Levy (School)Mill Levy (Non-School)Total Mill LevyWater AssessmentProperty Tax & Water
20251235$0$54,380$54,380$3,830$3,4001030145.077026.054071.1310$0.00*$261.23
20241235$0$14,920$14,920N/A$1,00010301N/AN/A71.1310$0.00$71.13
20231235$0$14,920$14,920N/A$1,00010301N/AN/A70.7020$0.00$70.70
*Current estimated tax is using previous year's Mill Levy (Mill Levy determined in December of current year)

Taxing Authority Detail

YearAgency NameAgency Abbrev.TAC CodeMill LevyTotal (Assessed)Tax Per Agency
2025CITY OF GRAND JUNCTIONGRJCT10301 8.0000 $3,400 $27.20
2025COLORADO RIVER WATER CONSERVATIONCOLRW10301 0.5010 $3,400 $1.70
2025COUNTY - DEVELOP DISABLEDMCCCB10301 0.2190 $3,400 $0.74
2025COUNTY CAPITAL EXPEND (INACTIVE)MCCAP10301 0.0000 $3,400 $0.00
2025COUNTY GENERAL FUNDMCGF10301 9.3810 $3,400 $31.90
2025COUNTY LEASE-PURCHASE JAIL (INACTIVE)MCLP10301 0.0000 $3,400 $0.00
2025COUNTY ROAD & BRIDGE-1/2 LEVYMCRBS10301 0.1370 $3,400 $0.47
2025COUNTY TRANSLATOR TV FUNDMCTV10301 0.0280 $3,400 $0.10
2025GRAND RIVER MOSQUITO CTRLGRMCD10301 1.1840 $3,400 $4.03
2025GRAND VALLEY DRAINAGE DISTGVDD10301 1.7760 $3,400 $6.04
2025LIBRARY DISTRICTLIBR10301 3.0050 $3,400 $10.22
2025MESA CNTY ROAD & BRIDGE-GRAND JCTGJRB10301 0.1370 $3,400 $0.47
2025MESA COUNTY MCCNT10301 0.0000 $3,400 $0.00
2025SCHOOL DIST# 51 2004 OVERIDSD51O0610301 1.5890 $3,830 $6.09
2025SCHOOL DIST# 51 2017 OVERRIDESD51O_1710301 0.0000 $3,830 $0.00
2025SCHOOL DIST# 51 2024 OVERRIDESD51O_2410301 2.5810 $3,830 $9.89
2025SCHOOL DIST# 51 BONDSD51B10301 11.3250 $3,830 $43.37
2025SCHOOL DIST# 51 GENERALSD5110301 27.0880 $3,830 $103.75
2025SCHOOL DIST# 51 OVERRIDE 96SD51O10301 2.4940 $3,830 $9.55
2025SOCIAL SERVICESMCSS10301 1.6860 $3,400 $5.73
2025UTE WATER CONSERVANCYUTE10301 0.0000 $3,400 $0.00
 Tax Authority Contact Information Total Mill: 71.1310 Total Tax: *$261.23

Sales & Conveyance Information **

DatePriceReception Number
(Click for Recorded Document)
Document Type
9/28/2018$40,000.002856271MH
4/16/2018$50.002837059MH
11/28/2017$0.002822293MH
12/15/2015$6,500.002746109MHVTA
3/1/2001$10.000MH
10/28/2002$10.000MH
  Search Clerk RecordsDocument Type Descriptions

Land Description

Photo 1 of 4

Loading Picture...

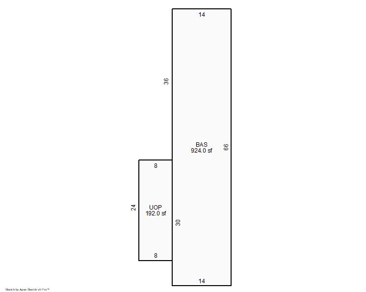
Building Sketch 1 of 1

Building Sketch 1

Loading Sketch...
  • Base Area(BAS) = 924 sq.ft.
  • Unfin Open Porch(UOP) = 192 sq.ft.
Building IDM087068MBL1.1735714800000
Model Description:Mobile Home
Building Use:MANUFAC HOUSING (1235)
Units:1
Arch Desc:SINGLE
Quality:AVERAGE QUALITY
Actual Year Built:1980
Effective Year Built:2000
Rooms:3
Bedrooms:2
Bathrooms:1 3/4 BATH
Heat Type:FORCED AIR HEAT
Heat Fuel:GAS
Heated SQ. FT.:924
Air Conditioning:ROOF TOP AIR
Frame:STEEL
Interior Wall:AVERAGE PANEL
Exterior Wall:CORROGATED MTL
Roof Cover:CORG METAL
Roof Structure:FLAT
Style:FACTORY BUILT
Stories:1
Comm. Wall Height:N/A
Comm. Fixtures:N/A

There are no Miscellaneous items associated with this record

Historical Information