• Brent Goff, Assessor
  • Real Property Record
  • P.O. Box 20,000
  • 544 Rood Avenue
  • Grand Junction, CO 81502
This is an image of the Mesa County Logo with a picture of a monument Mesa County Home Page

Mesa County Assessor - Real Property Public Information Retrieval

Brent Goff, Assessor dataview Updated: 5/3/2026

Property Information(Report Date: 5/4/2026)


Parcel Number: 2661-362-00-239
Account Number: R001729
Property Use: Agricultural
Location Address: 71090 E HIGHWAY 330
COLLBRAN, CO 81624
Mailing Address: 60605 SALT CREEK
COLLBRAN, CO 81624
Owner Name(s): OLFORD COLBY
Joint Owner
Neighborhood: AREA 28 M&B AYB 1981-2000; 2001-2500SF (28.38)
Associated Parcel: N/A
Previous Parcel: 2661-362-00-208
Approx. Latitude: 39.232582
Approx. Longitude: -107.722101
Date of Aerial Photo: 2019 & 2024

Legal Description

W2N2E3/4 SEC 36 9S 93W EXC N2W2N2E3/4 THEREOF - 54.62AC

Tax Information

YearProperty CodeLand ActualImprovements ActualTotal ActualTotal Assessed (School)Total Assessed (Non-School)TAC CodeMill Levy (School)Mill Levy (Non-School)Total Mill LevyWater AssessmentProperty Tax & Water
20261177, 1277, 4147$20,510$318,710$339,220$24,630$23,7902030035.843032.618068.4610$0.00*$1,658.80
20251177, 1277, 4147$20,510$318,710$339,220$24,710$22,0302030035.843032.618068.4610$0.00$1,604.26
20241177, 1277, 4147$11,550$159,610$171,160N/A$12,25020300N/AN/A59.0150$0.00$722.93
*Current estimated tax is using previous year's Mill Levy (Mill Levy determined in December of current year)

Taxing Authority Detail

YearAgency NameAgency Abbrev.TAC CodeMill LevyTotal (Assessed)Tax Per Agency
2026COLLBRAN CEMETERY DIST.CCD20300 0.6520 $23,790 $15.51
2026COLORADO RIVER WATER CONSERVATIONCOLRW20300 0.5020 $23,790 $11.94
2026COUNTY - DEVELOP DISABLEDMCCCB20300 0.2190 $23,790 $5.21
2026COUNTY CAPITAL EXPEND (INACTIVE)MCCAP20300 0.0000 $23,790 $0.00
2026COUNTY GENERAL FUNDMCGF20300 8.3130 $23,790 $197.77
2026COUNTY LEASE-PURCHASE JAIL (INACTIVE)MCLP20300 0.0000 $23,790 $0.00
2026COUNTY ROAD & BRIDGE-FULL LEVYMCR_B20300 0.2740 $23,790 $6.52
2026COUNTY TRANSLATOR TV FUNDMCTV20300 0.0280 $23,790 $0.67
2026LIBRARY DISTRICTLIBR20300 2.9440 $23,790 $70.04
2026MESA COUNTY MCCNT20300 0.0000 $23,790 $0.00
2026PLATEAU VALLEY FIRE PROTPVFD20300 10.0000 $23,790 $237.90
2026PLATEAU VALLEY HOSPITALPVH20300 8.0000 $23,790 $190.32
2026SCHOOL DIST #50 GENERALSD5020300 12.0160 $24,630 $295.95
2026SCHOOL DIST#50 BONDSD50B20300 0.0000 $24,630 $0.00
2026SCHOOL DIST#50 BOND 4A 2023SD50B_4A20300 21.2570 $24,630 $523.56
2026SCHOOL DISTRICT #50 2012 OVERIDESD50O1220300 2.5700 $24,630 $63.30
2026SOCIAL SERVICESMCSS20300 1.6860 $23,790 $40.11
 Tax Authority Contact Information Total Mill: 68.4610 Total Tax: *$1,658.80

Sales & Conveyance Information **

DatePriceReception Number
(Click for Recorded Document)
Document Type
8/19/2024$0.003101773AGMT
10/10/2019$200,000.002898580SWD
10/10/2019 2898579POA
10/10/2019$0.002898578STMT_AUTHORITY
10/10/2019$0.002898577STMT_AUTHORITY
11/17/2016$0.002781446QCD TC
2/28/2014$0.002683276QCD TC
4/4/2005$0.002246600Quit Claim Deed
7/11/2002$0.002095768Quit Claim Deed
5/17/2002$0.002059019Quit Claim Deed
9/18/2001$0.002017115Correction Deed
7/10/2001$0.002012282QCD JT
  Search Clerk RecordsDocument Type Descriptions

Land Description

Property Use CodeProperty Use TypeAcresUnits
4147 GRAZING AGRICULTURAL LAND 54.340
1177 NOT INTEGRAL RESI TO AG OPERATION LAND  1
  Approximate Acres: 54.34 (Acreage is approximate and should not be used in lieu of Legal Documents)   

One Photo Available

Loading Picture...

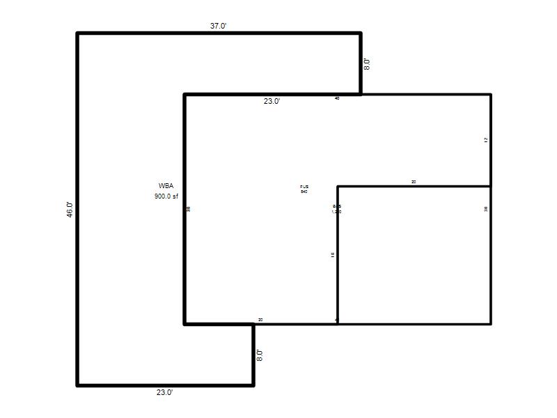
Building Sketch 1 of 1

Building Sketch 1

Loading Sketch...
  • Base Area(BAS) = 1200 sq.ft.
  • Finished Upper Story(FUS) = 840 sq.ft.
  • Wood Deck,Balcony(WBA) = 900 sq.ft.
Building IDR001729RES1.1739401515562
Model Description:Residential
Building Use:PROPERTY NOT INTEGRAL TO AG OPERATION (1277)
Units:1
Arch Desc:2 STORY W/BSMT
Quality:AVERAGE
Actual Year Built:1988
Effective Year Built:1988
Rooms:4
Bedrooms:2
Bathrooms:1 1/2 BATH
Heat Type:STOVE
Heat Fuel:WOOD
Heated SQ. FT.:2040
Air Conditioning:NONE
Frame:WOOD FRAME
Interior Wall:WOOD CUSTOM PNL
Exterior Wall:MODULAR METAL
Roof Cover:MODULAR METAL
Roof Structure:GABLE OR HIP
Style:SFR
Stories:2
Comm. Wall Height:N/A
Comm. Fixtures:N/A

Miscellaneous Building Information

Year BuiltMiscellaneous DescriptionLength (ft.)Width (ft.)Units or Sq. Ft.
1988WOOD STOVE001.00
Miscellaneous items above are not tied to a specific building

Historical Information