• Brent Goff, Assessor
  • Real Property Record
  • P.O. Box 20,000
  • 544 Rood Avenue
  • Grand Junction, CO 81502
This is an image of the Mesa County Logo with a picture of a monument Mesa County Home Page

Mesa County Assessor - Real Property Public Information Retrieval

Brent Goff, Assessor dataview Updated: 12/15/2025

Property Information(Report Date: 12/16/2025)


Parcel Number: 2667-111-02-002
Account Number: R002024
Property Use: Agricultural
Location Address: 19506 KIMBALL CREEK RD
COLLBRAN, CO 81624
Mailing Address: 840 TURPIN WAY
ERIE, CO 80516
Owner Name(s): HESS RICHARD W
Joint Owner HESS MAVIS N
Neighborhood: Econ 28 M+B #14 MH (720028.33)
Associated Parcel: N/A
Previous Parcel: 2667-111-00-250
Approx. Latitude: 39.291748
Approx. Longitude: -107.952316
Date of Aerial Photo: 2019 & 2024

Legal Description

LOT 2 HESS MINOR SUB SEC 11 9S 95W - 13.05AC

Tax Information

YearProperty CodeLand ActualImprovements ActualTotal ActualTotal Assessed (School)Total Assessed (Non-School)TAC CodeMill Levy (School)Mill Levy (Non-School)Total Mill LevyWater AssessmentProperty Tax & Water
20254137, 4277, 4279$4,980$228,850$233,830$19,080$17,3102030030.353028.662059.0150$0.00*$1,075.27
20244137, 4277, 4279$4,830$148,210$153,040N/A$12,81020300N/AN/A59.0150$0.00$755.98
20234137, 4277, 4279$4,830$148,210$153,040N/A$12,81020300N/AN/A54.2050$0.00$694.37
*Current estimated tax is using previous year's Mill Levy (Mill Levy determined in December of current year)

Taxing Authority Detail

YearAgency NameAgency Abbrev.TAC CodeMill LevyTotal (Assessed)Tax Per Agency
2025COLLBRAN CEMETERY DIST.CCD20300 0.3990 $17,310 $6.91
2025COLORADO RIVER WATER CONSERVATIONCOLRW20300 0.5010 $17,310 $8.67
2025COUNTY - DEVELOP DISABLEDMCCCB20300 0.2190 $17,310 $3.79
2025COUNTY CAPITAL EXPEND (INACTIVE)MCCAP20300 0.0000 $17,310 $0.00
2025COUNTY GENERAL FUNDMCGF20300 9.3810 $17,310 $162.39
2025COUNTY LEASE-PURCHASE JAIL (INACTIVE)MCLP20300 0.0000 $17,310 $0.00
2025COUNTY ROAD & BRIDGE-FULL LEVYMCR_B20300 0.2740 $17,310 $4.74
2025COUNTY TRANSLATOR TV FUNDMCTV20300 0.0280 $17,310 $0.48
2025LIBRARY DISTRICTLIBR20300 3.0050 $17,310 $52.02
2025MESA COUNTY MCCNT20300 0.0000 $17,310 $0.00
2025PLATEAU VALLEY FIRE PROTPVFD20300 5.1690 $17,310 $89.48
2025PLATEAU VALLEY HOSPITALPVH20300 8.0000 $17,310 $138.48
2025SCHOOL DIST #50 GENERALSD5020300 11.9210 $19,080 $227.45
2025SCHOOL DIST#50 BONDSD50B20300 0.0000 $19,080 $0.00
2025SCHOOL DIST#50 BOND 4A 2023SD50B_4A20300 16.3990 $19,080 $312.89
2025SCHOOL DISTRICT #50 2012 OVERIDESD50O1220300 2.0330 $19,080 $38.79
2025SOCIAL SERVICESMCSS20300 1.6860 $17,310 $29.18
 Tax Authority Contact Information Total Mill: 59.0150 Total Tax: *$1,075.27

Sales & Conveyance Information **

DatePriceReception Number
(Click for Recorded Document)
Document Type
5/19/1965$0.00894785Quit Claim Deed
8/19/2024$0.003101773AGMT
6/17/2010$0.002536450QCD TC
  Search Clerk RecordsDocument Type Descriptions

Land Description

Property Use CodeProperty Use TypeAcres
4137 MEADOW HAY AGRICULTURAL LAND 13.05
  Approximate Acres: 13.05 (Acreage is approximate and should not be used in lieu of Legal Documents)  

No Photos Available


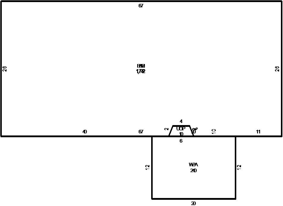
Building Sketch 1 of 1

Building Sketch 1

Loading Sketch...
  • Base Area(BAS) = 1732 sq.ft.
  • LARGE BASEMENT(LBM) = 1742 sq.ft.
  • Wood Deck,Balcony(WBA) = 240 sq.ft.
  • Unfin Open Porch(UOP) = 10 sq.ft.
Building IDR002024RES1.1735714800000
Model Description:Residential
Building Use:FARM RANCH RESI (4277)
Units:1
Arch Desc:RANCH WITH BSMT
Quality:BELOW AVERAGE
Actual Year Built:1989
Effective Year Built:1989
Rooms:5
Bedrooms:3
Bathrooms:2 BATH
Heat Type:FORCED AIR HEAT
Heat Fuel:GAS
Heated SQ. FT.:1732
Air Conditioning:NONE
Frame:STEEL
Interior Wall:DRYWALL
Exterior Wall:WOOD SIDING
Roof Cover:ASPH/COMP SHNGL
Roof Structure:GABLE OR HIP
Style:SFR
Stories:1
Comm. Wall Height:N/A
Comm. Fixtures:N/A

Miscellaneous Building Information

Year BuiltMiscellaneous DescriptionLength (ft.)Width (ft.)Units or Sq. Ft.
1993CLASS D EQUIPMENT SHED40301200.00
1993CLASS D HAY SHED-AVG4012480.00
Miscellaneous items above are not tied to a specific building

Historical Information