• Brent Goff, Assessor
  • Real Property Record
  • P.O. Box 20,000
  • 544 Rood Avenue
  • Grand Junction, CO 81502
This is an image of the Mesa County Logo with a picture of a monument Mesa County Home Page

Mesa County Assessor - Real Property Public Information Retrieval

Brent Goff, Assessor dataview Updated: 11/3/2025

Property Information(Report Date: 11/4/2025)


Parcel Number: 2667-141-00-252
Account Number: R002046
Property Use: Agricultural
Location Address: 18957 KIMBALL CREEK RD
COLLBRAN, CO 81624
Mailing Address: 19106 KIMBALL CREEK RD
COLLBRAN, CO 81624
Owner Name(s): HOOPER SANDRA
Joint Owner HOOPER TRENT
Neighborhood: AREA 28 M&B AYB 1981-2000; 2001-2500SF (28.38)
Associated Parcel: N/A
Previous Parcel: 2667-141-00-184
Approx. Latitude: 39.282314
Approx. Longitude: -107.957428
Date of Aerial Photo: 2019 & 2024

Legal Description

ALL THAT PT OF N2NE4 SEC 14 9S 95W LYG WEST OF FOLL- DESC LI BEG S 89DEG46'13SEC W 886.07FT FR NE COR SD SEC 14 TO C-LI OF A RD ALG C-LI S 6DEG29'08SEC E 14.02 FT S 13DEG47'02SEC E 119.26FT S 18DEG29'59SEC E 236.41 FT S 5DEG02'29SEC W 337.09FT S 0DEG46'41SEC W 90.51FT S 6DEG18'56SEC E 239FT S 11DEG44'05SEC W 148.95FT S S 28DEG21'53SEC W 171.42FT M-L TO S-LI N2NE4 SD SEC 14 EXC FOR RD ROW AS DESC B-1523 P-366 MESA CO RECDS -55.01AC

Tax Information

YearProperty CodeLand ActualImprovements ActualTotal ActualTotal Assessed (School)Total Assessed (Non-School)TAC CodeMill Levy (School)Mill Levy (Non-School)Total Mill LevyWater AssessmentProperty Tax & Water
20254147, 4277$2,420$334,600$337,020$24,240$21,5602030030.353028.662059.0150$0.00*$1,353.71
20244147, 4277$2,470$248,720$251,190N/A$17,31020300N/AN/A59.0150$0.00$1,021.55
20234147, 4277$2,470$248,720$251,190N/A$17,31020300N/AN/A54.2050$0.00$938.29
*Current estimated tax is using previous year's Mill Levy (Mill Levy determined in December of current year)

Taxing Authority Detail

YearAgency NameAgency Abbrev.TAC CodeMill LevyTotal (Assessed)Tax Per Agency
2025COLLBRAN CEMETERY DIST.CCD20300 0.3990 $21,560 $8.60
2025COLORADO RIVER WATER CONSERVATIONCOLRW20300 0.5010 $21,560 $10.80
2025COUNTY - DEVELOP DISABLEDMCCCB20300 0.2190 $21,560 $4.72
2025COUNTY CAPITAL EXPEND (INACTIVE)MCCAP20300 0.0000 $21,560 $0.00
2025COUNTY GENERAL FUNDMCGF20300 9.3810 $21,560 $202.25
2025COUNTY LEASE-PURCHASE JAIL (INACTIVE)MCLP20300 0.0000 $21,560 $0.00
2025COUNTY ROAD & BRIDGE-FULL LEVYMCR_B20300 0.2740 $21,560 $5.91
2025COUNTY TRANSLATOR TV FUNDMCTV20300 0.0280 $21,560 $0.60
2025LIBRARY DISTRICTLIBR20300 3.0050 $21,560 $64.79
2025MESA COUNTY MCCNT20300 0.0000 $21,560 $0.00
2025PLATEAU VALLEY FIRE PROTPVFD20300 5.1690 $21,560 $111.44
2025PLATEAU VALLEY HOSPITALPVH20300 8.0000 $21,560 $172.48
2025SCHOOL DIST #50 GENERALSD5020300 11.9210 $24,240 $288.97
2025SCHOOL DIST#50 BONDSD50B20300 0.0000 $24,240 $0.00
2025SCHOOL DIST#50 BOND 4A 2023SD50B_4A20300 16.3990 $24,240 $397.51
2025SCHOOL DISTRICT #50 2012 OVERIDESD50O1220300 2.0330 $24,240 $49.28
2025SOCIAL SERVICESMCSS20300 1.6860 $21,560 $36.35
 Tax Authority Contact Information Total Mill: 59.0150 Total Tax: *$1,353.71

Sales & Conveyance Information **

DatePriceReception Number
(Click for Recorded Document)
Document Type
10/22/2024$570,000.003107526PER_REP_DEED
10/22/2024$0.003107525Letters
10/7/2024$0.003106219AFF_SCRIV_ERROR
8/19/2024$0.003101773AGMT
9/27/2022$0.003044887O_G
2/15/2017$475,000.002790448Warranty Deed
6/17/2010$0.002536450QCD TC
11/20/2002$530,000.002092293Warranty Deed
5/1/1991$0.001570372Quit Claim Deed
2/1/1985$45,000.001382471Warranty Deed
  Search Clerk RecordsDocument Type Descriptions

Land Description

Property Use CodeProperty Use TypeAcres
4147 GRAZING AGRICULTURAL LAND 55.01
  Approximate Acres: 55.01 (Acreage is approximate and should not be used in lieu of Legal Documents)  

Photo 1 of 7

Loading Picture...

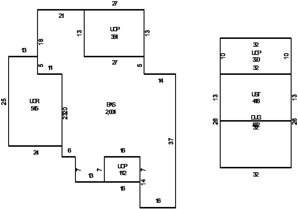
Building Sketch 1 of 1

Building Sketch 1

Loading Sketch...
  • Base Area(BAS) = 2001 sq.ft.
  • Garage,Det,Unf(DUG) = 832 sq.ft.
  • Unfinished Carport(UCP) = 320 sq.ft.
  • Unfinished Storage(UST) = 416 sq.ft.
  • Unfin Open Porch(UOP) = 463 sq.ft.
  • Unfinished Garage(UGR) = 545 sq.ft.
Building IDR002046RES1.1749061861129
Model Description:Residential
Building Use:FARM RANCH RESI (4277)
Units:1
Arch Desc:RANCH
Quality:AVERAGE
Actual Year Built:1988
Effective Year Built:1988
Rooms:5
Bedrooms:3
Bathrooms:1 3/4 BATH
Heat Type:HOT WATER
Heat Fuel:GAS
Heated SQ. FT.:2001
Air Conditioning:NONE
Frame:WOOD FRAME
Interior Wall:DRYWALL
Exterior Wall:WOOD SIDING
Roof Cover:ASPH/COMP SHNGL
Roof Structure:GABLE OR HIP
Style:SFR
Stories:1
Comm. Wall Height:N/A
Comm. Fixtures:N/A

Miscellaneous Building Information

Year BuiltMiscellaneous DescriptionLength (ft.)Width (ft.)Units or Sq. Ft.
1988FIREPLACE001.00
Miscellaneous items above are not tied to a specific building

Historical Information