• Brent Goff, Assessor
  • Real Property Record
  • P.O. Box 20,000
  • 544 Rood Avenue
  • Grand Junction, CO 81502
This is an image of the Mesa County Logo with a picture of a monument Mesa County Home Page

Mesa County Assessor - Real Property Public Information Retrieval

Brent Goff, Assessor dataview Updated: 12/15/2025

Property Information(Report Date: 12/15/2025)


Parcel Number: 2667-264-01-007
Account Number: R002175
Property Use: Residential
Location Address: 58950 E HIGHWAY 330
COLLBRAN, CO 81624
Mailing Address: 58950 HIGHWAY 330 E
COLLBRAN, CO 816249613
Owner Name(s): SYLVIA A SPANGLER LIVING TRUST DATED APRIL 6 2016
Joint Owner
Neighborhood: AREA 28 M&B AYB 1961-1980; 1500-2000SF (28.31)
Associated Parcel: N/A
Approx. Latitude: 39.243427
Approx. Longitude: -107.952349
Date of Aerial Photo: 2019 & 2024

Legal Description

LOT 7 I-V-A VIEW SUB SEC 26 9S 95W 6TH PM

Tax Information

YearProperty CodeLand ActualImprovements ActualTotal ActualTotal Assessed (School)Total Assessed (Non-School)TAC CodeMill Levy (School)Mill Levy (Non-School)Total Mill LevyWater AssessmentProperty Tax & Water
20251112, 1212$70,000$186,550$256,550$18,090$16,0402010030.353036.638066.9910$0.00*$1,136.76
20241112, 1212$52,330$110,610$162,940N/A$10,92020100N/AN/A66.9910$0.00$731.54
20231112, 1212$52,330$110,610$162,940N/A$10,92020100N/AN/A62.0230$0.00$677.29
*Current estimated tax is using previous year's Mill Levy (Mill Levy determined in December of current year)

Taxing Authority Detail

YearAgency NameAgency Abbrev.TAC CodeMill LevyTotal (Assessed)Tax Per Agency
2025COLLBRAN CEMETERY DIST.CCD20100 0.3990 $16,040 $6.40
2025COLLBRAN CONSERVANCY DISTRICTCCONS20100 0.5920 $16,040 $9.50
2025COLORADO RIVER WATER CONSERVATIONCOLRW20100 0.5010 $16,040 $8.04
2025COUNTY - DEVELOP DISABLEDMCCCB20100 0.2190 $16,040 $3.51
2025COUNTY CAPITAL EXPEND (INACTIVE)MCCAP20100 0.0000 $16,040 $0.00
2025COUNTY GENERAL FUNDMCGF20100 9.3810 $16,040 $150.47
2025COUNTY LEASE-PURCHASE JAIL (INACTIVE)MCLP20100 0.0000 $16,040 $0.00
2025COUNTY ROAD & BRIDGE-1/2 LEVYMCRBS20100 0.1370 $16,040 $2.20
2025COUNTY TRANSLATOR TV FUNDMCTV20100 0.0280 $16,040 $0.45
2025LIBRARY DISTRICTLIBR20100 3.0050 $16,040 $48.20
2025MESA CNTY ROAD & BRIDGE-COLLBRANCOLRB20100 0.1370 $16,040 $2.20
2025MESA COUNTY MCCNT20100 0.0000 $16,040 $0.00
2025PLATEAU VALLEY FIRE PROTPVFD20100 5.1690 $16,040 $82.91
2025PLATEAU VALLEY HOSPITALPVH20100 8.0000 $16,040 $128.32
2025SCHOOL DIST #50 GENERALSD5020100 11.9210 $18,090 $215.65
2025SCHOOL DIST#50 BONDSD50B20100 0.0000 $18,090 $0.00
2025SCHOOL DIST#50 BOND 4A 2023SD50B_4A20100 16.3990 $18,090 $296.66
2025SCHOOL DISTRICT #50 2012 OVERIDESD50O1220100 2.0330 $18,090 $36.78
2025SOCIAL SERVICESMCSS20100 1.6860 $16,040 $27.04
2025TOWN OF COLLBRANCOLLB20100 7.3840 $16,040 $118.44
 Tax Authority Contact Information Total Mill: 66.9910 Total Tax: *$1,136.76

Sales & Conveyance Information **

DatePriceReception Number
(Click for Recorded Document)
Document Type
4/8/2016$0.002756442Quit Claim Deed
4/8/2016$0.002756441STMT_AUTHORITY
1/10/2007$0.002359036PER_REP_DEED
3/15/2006$0.002359035Letters
1/10/2005$0.002234697Quit Claim Deed
3/11/2002$0.002045193QCD JT
2/22/1994$0.001675804Quit Claim Deed
7/29/1992$0.001610871Warranty Deed JT
  Search Clerk RecordsDocument Type Descriptions

Land Description

Property Use CodeProperty Use TypeUnits
1112 SINGLE FAMILY RESIDENTIAL LAND 1
  Approximate Acres: 0.49 (Acreage is approximate and should not be used in lieu of Legal Documents)  

Photo 1 of 4

Loading Picture...

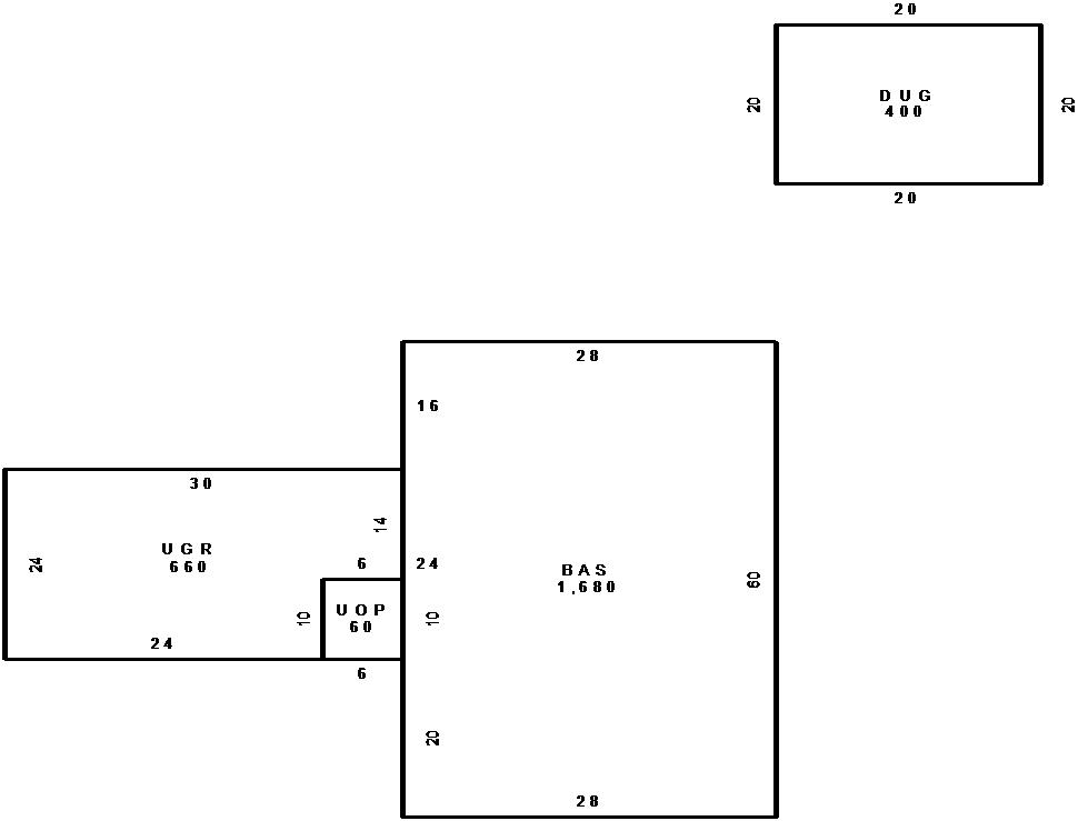
Building Sketch 1 of 1

Building Sketch 1

Loading Sketch...
  • Base Area(BAS) = 1680 sq.ft.
  • Garage,Det,Unf(DUG) = 400 sq.ft.
  • Unfin Open Porch(UOP) = 60 sq.ft.
  • Unfinished Garage(UGR) = 660 sq.ft.
Building IDR002175RES1.1735714800000
Model Description:Residential
Building Use:SFR & TOWNHOUSE (1212)
Units:1
Arch Desc:RANCH
Quality:AVERAGE
Actual Year Built:1973
Effective Year Built:1973
Rooms:5
Bedrooms:3
Bathrooms:1 3/4 BATH
Heat Type:FORCED AIR HEAT
Heat Fuel:GAS
Heated SQ. FT.:1680
Air Conditioning:NONE
Frame:WOOD FRAME
Interior Wall:DRYWALL
Exterior Wall:WOOD SIDING
Roof Cover:ASPH/COMP SHNGL
Roof Structure:GABLE OR HIP
Style:SFR
Stories:1
Comm. Wall Height:N/A
Comm. Fixtures:N/A

Miscellaneous Building Information

Year BuiltMiscellaneous DescriptionLength (ft.)Width (ft.)Units or Sq. Ft.
1973FIREPLACE001.00
Miscellaneous items above are not tied to a specific building

Historical Information