• Brent Goff, Assessor
  • Real Property Record
  • P.O. Box 20,000
  • 544 Rood Avenue
  • Grand Junction, CO 81502
This is an image of the Mesa County Logo with a picture of a monument Mesa County Home Page

Mesa County Assessor - Real Property Public Information Retrieval

Brent Goff, Assessor dataview Updated: 1/6/2026

Property Information(Report Date: 1/7/2026)


Parcel Number: 2693-041-00-190
Account Number: R005724
Property Use: Agricultural
Location Address: 1269 13 RD
LOMA, CO 81524
Mailing Address: 1126 O RD
LOMA, CO 81524-9541
Owner Name(s): REID G ALLEN
Joint Owner
Neighborhood: AREA 27 M&B AYB 1940>; 0-1499SF (27.50)
Associated Parcel: N/A
Previous Parcel: 2693-041-00-094
Approx. Latitude: 39.186767
Approx. Longitude: -108.815288
Date of Aerial Photo: 2019 & 2024

Legal Description

BEG W4 COR SD SEC 3 S 89DEG48' E 1394.77FT TO A PT ON S & E BANK DRAIN ALG DRAIN N 10DEG32' E 128.2FT N 47DEG35' E 680FT N 81DEG35' E 500FT N 58DEG12' E 210FT N 3DEG17' E 165FT N 87DEG44' E 441FT TO C-L RD N 0DEG30' E 375.11FT N 89DEG47' W 2635.24FT N 89DEG48' W 1317.67FT S 0DEG30' W 1969.94FT TO DRAIN ALG DRAIN S 81DEG22' E 716.71FT S 65DEG36' E 300.02FT S 59DEG43' E 381.53FT N 0DEG23' E 762.77FT N 0DEG39' E 311FT TO BEG EXC ROW B-943 P-807 MESA CO RECDS EXC REID SUBDIVISION - 64.94AC

Tax Information

YearProperty CodeLand ActualImprovements ActualTotal ActualTotal Assessed (School)Total Assessed (Non-School)TAC CodeMill Levy (School)Mill Levy (Non-School)Total Mill LevyWater AssessmentProperty Tax & Water
20254117, 4147, 4277, 4279$50,810$177,020$227,830$26,520$25,1201220442.218023.976066.1940$0.00$1,721.90
20244117, 4147, 4277, 4279$59,840$87,140$146,980N/A$21,96012204N/AN/A70.2780$0.00$1,543.30
20234117, 4147, 4277, 4279$59,840$87,140$146,980N/A$21,96012204N/AN/A69.8420$0.00$1,533.73

Taxing Authority Detail

YearAgency NameAgency Abbrev.TAC CodeMill LevyTotal (Assessed)Tax Per Agency
2025COLORADO RIVER WATER CONSERVATIONCOLRW12204 0.5020 $25,120 $12.61
2025COUNTY - DEVELOP DISABLEDMCCCB12204 0.2190 $25,120 $5.50
2025COUNTY CAPITAL EXPEND (INACTIVE)MCCAP12204 0.0000 $25,120 $0.00
2025COUNTY GENERAL FUNDMCGF12204 8.3130 $25,120 $208.82
2025COUNTY LEASE-PURCHASE JAIL (INACTIVE)MCLP12204 0.0000 $25,120 $0.00
2025COUNTY ROAD & BRIDGE-FULL LEVYMCR_B12204 0.2740 $25,120 $6.88
2025COUNTY TRANSLATOR TV FUNDMCTV12204 0.0280 $25,120 $0.70
2025GRAND VALLEY DRAINAGE DISTGVDD12204 1.6710 $25,120 $41.98
2025LIBRARY DISTRICTLIBR12204 2.9440 $25,120 $73.95
2025LOWER VALLEY FIRE PROTECTLVFD12204 8.3390 $25,120 $209.48
2025MESA COUNTY MCCNT12204 0.0000 $25,120 $0.00
2025SCHOOL DIST# 51 2004 OVERIDSD51O0612204 1.3270 $26,520 $35.19
2025SCHOOL DIST# 51 2017 OVERRIDESD51O_1712204 0.0000 $26,520 $0.00
2025SCHOOL DIST# 51 2024 OVERRIDESD51O_2412204 2.1570 $26,520 $57.20
2025SCHOOL DIST# 51 BONDSD51B12204 9.4760 $26,520 $251.30
2025SCHOOL DIST# 51 GENERALSD5112204 27.1260 $26,520 $719.38
2025SCHOOL DIST# 51 OVERRIDE 96SD51O12204 2.1320 $26,520 $56.54
2025SOCIAL SERVICESMCSS12204 1.6860 $25,120 $42.35
2025UTE WATER CONSERVANCYUTE12204 0.0000 $25,120 $0.00
 Tax Authority Contact Information Total Mill: 66.1940 Total Tax: $1,721.90

Sales & Conveyance Information **

DatePriceReception Number
(Click for Recorded Document)
Document Type
9/15/2025$0.003137073ESMT_ROW
9/15/2025$0.003137072ESMT_ROW
5/17/2018$0.002840705Warranty Deed
8/21/2002$680,000.002072399Warranty Deed
5/14/2002$340,000.002056055Warranty Deed
  Search Clerk RecordsDocument Type Descriptions

Land Description

Property Use CodeProperty Use TypeAcres
4117 IRRIGATED AGRICULTURAL LAND 15.00
4117 IRRIGATED AGRICULTURAL LAND 47.94
4147 GRAZING AGRICULTURAL LAND 2.00
  Approximate Acres: 64.94 (Acreage is approximate and should not be used in lieu of Legal Documents)  

Photo 1 of 4

Loading Picture...

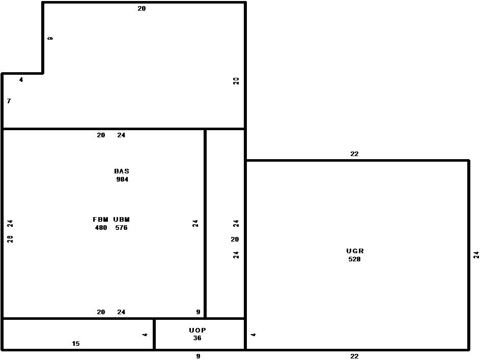
Building Sketch 1 of 1

Building Sketch 1

Loading Sketch...
  • Base Area(BAS) = 984 sq.ft.
  • Fin Basement(FBM) = 480 sq.ft.
  • Unfinished Basement(UBM) = 576 sq.ft.
  • Unfin Open Porch(UOP) = 36 sq.ft.
  • Unfinished Garage(UGR) = 528 sq.ft.
Building IDR005724RES1.1735714800000
Model Description:Residential
Building Use:FARM RANCH RESI (4277)
Units:1
Arch Desc:RANCH WITH BSMT
Quality:AVERAGE
Actual Year Built:1932
Effective Year Built:1940
Rooms:5
Bedrooms:2
Bathrooms:1 BATH
Heat Type:HOT WATER
Heat Fuel:GAS
Heated SQ. FT.:1464
Air Conditioning:ROOF TOP AIR
Frame:WOOD FRAME
Interior Wall:DRYWALL
Exterior Wall:WOOD SIDING
Roof Cover:ASPH/COMP SHNGL
Roof Structure:GABLE OR HIP
Style:SFR
Stories:1
Comm. Wall Height:N/A
Comm. Fixtures:N/A

Miscellaneous Building Information

Year BuiltMiscellaneous DescriptionLength (ft.)Width (ft.)Units or Sq. Ft.
1986CLASS S HAY SHED, GOOD STEEL3228896.00
1986CLASS S HAY SHED, GOOD STEEL2416384.00
Miscellaneous items above are not tied to a specific building

Historical Information