• Brent Goff, Assessor
  • Real Property Record
  • P.O. Box 20,000
  • 544 Rood Avenue
  • Grand Junction, CO 81502
This is an image of the Mesa County Logo with a picture of a monument Mesa County Home Page

Mesa County Assessor - Real Property Public Information Retrieval

Brent Goff, Assessor dataview Updated: 1/6/2026

Property Information(Report Date: 1/7/2026)


Parcel Number: 2697-083-30-040
Account Number: R008441
Property Use: Duplex/Triplex
Location Address: 289 ROBERSON DR #A
FRUITA, CO 81521
Mailing Address: 950 OLEANDER DR
LOVELAND, CO 80538
Owner Name(s): 287 ROBERSON LLC
Joint Owner
Neighborhood: D-Area 26 Duplex-Triplex (66.01)
Associated Parcel: N/A
Previous Parcel: 2697-083-30-032
Approx. Latitude: 39.166058
Approx. Longitude: -108.737446
Date of Aerial Photo: 2019 & 2024

Legal Description

LOTS 11A & 11A-1 REPLAT LOT 11 BLK 3 ROBERSON WEST PLANNED UNIT DEV A REPLAT OF ROBERSON WEST SUB SEC 8 1N 2W

Tax Information

YearProperty CodeLand ActualImprovements ActualTotal ActualTotal Assessed (School)Total Assessed (Non-School)TAC CodeMill Levy (School)Mill Levy (Non-School)Total Mill LevyWater AssessmentProperty Tax & Water
20251115, 1215$49,500$230,970$280,470$19,770$17,5301160042.218035.701077.9190$0.00$1,460.49
20241115, 1215$44,820$197,220$242,040N/A$16,21011600N/AN/A82.0050$0.00$1,329.30
20231115, 1215$44,820$197,220$242,040N/A$16,21011600N/AN/A81.5690$0.00$1,322.23

Taxing Authority Detail

YearAgency NameAgency Abbrev.TAC CodeMill LevyTotal (Assessed)Tax Per Agency
2025CITY OF FRUITAFRUIT11600 10.1460 $17,530 $177.86
2025COLORADO RIVER WATER CONSERVATIONCOLRW11600 0.5020 $17,530 $8.80
2025COUNTY - DEVELOP DISABLEDMCCCB11600 0.2190 $17,530 $3.84
2025COUNTY CAPITAL EXPEND (INACTIVE)MCCAP11600 0.0000 $17,530 $0.00
2025COUNTY GENERAL FUNDMCGF11600 8.3130 $17,530 $145.73
2025COUNTY LEASE-PURCHASE JAIL (INACTIVE)MCLP11600 0.0000 $17,530 $0.00
2025COUNTY ROAD & BRIDGE-1/2 LEVYMCRBS11600 0.1370 $17,530 $2.40
2025COUNTY TRANSLATOR TV FUNDMCTV11600 0.0280 $17,530 $0.49
2025ELMWOOD CEMETERY DISTRICTECD11600 0.3970 $17,530 $6.96
2025GRAND RIVER MOSQUITO CTRLGRMCD11600 1.1820 $17,530 $20.72
2025GRAND VALLEY DRAINAGE DISTGVDD11600 1.6710 $17,530 $29.29
2025LIBRARY DISTRICTLIBR11600 2.9440 $17,530 $51.61
2025LOWER VALLEY FIRE PROTECTLVFD11600 8.3390 $17,530 $146.18
2025MESA CNTY ROAD & BRIDGE-FRUITAFRRB11600 0.1370 $17,530 $2.40
2025MESA COUNTY MCCNT11600 0.0000 $17,530 $0.00
2025SCHOOL DIST# 51 2004 OVERIDSD51O0611600 1.3270 $19,770 $26.23
2025SCHOOL DIST# 51 2017 OVERRIDESD51O_1711600 0.0000 $19,770 $0.00
2025SCHOOL DIST# 51 2024 OVERRIDESD51O_2411600 2.1570 $19,770 $42.64
2025SCHOOL DIST# 51 BONDSD51B11600 9.4760 $19,770 $187.34
2025SCHOOL DIST# 51 GENERALSD5111600 27.1260 $19,770 $536.28
2025SCHOOL DIST# 51 OVERRIDE 96SD51O11600 2.1320 $19,770 $42.15
2025SOCIAL SERVICESMCSS11600 1.6860 $17,530 $29.56
2025UTE WATER CONSERVANCYUTE11600 0.0000 $17,530 $0.00
 Tax Authority Contact Information Total Mill: 77.9190 Total Tax: $1,460.49

Sales & Conveyance Information **

DatePriceReception Number
(Click for Recorded Document)
Document Type
7/29/2022$700,000.003039343SWD
4/12/2022$0.003027096PER_REP_DEED
4/12/2022$0.003027095Letters
11/29/2021$0.003009546DEATH_CERT
9/14/2016$0.002774062BENE_DEED
10/27/2003$110,000.002156870Warranty Deed
1/19/1996$0.001747824Quit Claim Deed
12/19/1994$42,000.001704373PER_REP_DEED
5/5/1994$0.001704372Letters
10/30/1990$45,000.001556730Warranty Deed
11/2/1990$45,000.001556729Warranty Deed
4/5/1990$45,000.001539646Warranty Deed
  Search Clerk RecordsDocument Type Descriptions

Land Description

Property Use CodeProperty Use TypeUnits
1115 DUPLEX - TRIPLEX RESIDENTIAL LAND 0.5
  Approximate Acres: 0.13 (Acreage is approximate and should not be used in lieu of Legal Documents)  

Photo 1 of 5

Loading Picture...

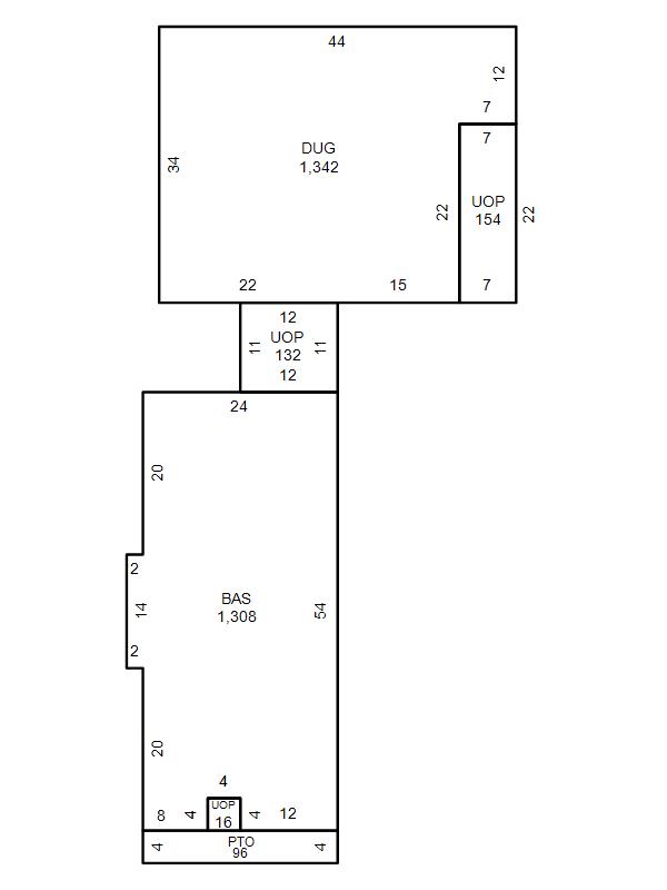
Building Sketch 1 of 1

Building Sketch 1

Loading Sketch...
  • Base Area(BAS) = 1308 sq.ft.
  • Garage,Det,Unf(DUG) = 1342 sq.ft.
  • Patio(PTO) = 96 sq.ft.
  • Unfin Open Porch(UOP) = 302 sq.ft.
Building IDR008441DUP1.1735714800000
Model Description:Duplex Triplex
Building Use:DUP-TRIPLEX (1215)
Units:2
Arch Desc:DUPLEX/TRI
Quality:AVERAGE QUALITY
Actual Year Built:1989
Effective Year Built:1989
Rooms:6
Bedrooms:2
Bathrooms:2 BATH
Heat Type:FORCED AIR HEAT
Heat Fuel:GAS
Heated SQ. FT.:1308
Air Conditioning:CENTRAL AIR
Frame:MASONRY
Interior Wall:DRYWALL
Exterior Wall:FACE BRICK
Roof Cover:ASPH/COMP SHNGL
Roof Structure:GABLE OR HIP
Style:DUPLEX TRIPLEX
Stories:1
Comm. Wall Height:N/A
Comm. Fixtures:N/A

There are no Miscellaneous items associated with this record

Historical Information