• Brent Goff, Assessor
  • Real Property Record
  • P.O. Box 20,000
  • 544 Rood Avenue
  • Grand Junction, CO 81502
This is an image of the Mesa County Logo with a picture of a monument Mesa County Home Page

Mesa County Assessor - Real Property Public Information Retrieval

Brent Goff, Assessor dataview Updated: 2/2/2026

Property Information(Report Date: 2/3/2026)


Parcel Number: 2701-344-33-001
Account Number: R019001
Property Use: Residential
Location Address: 742 BEAVER LODGE
GRAND JUNCTION, CO 81505
Mailing Address: 742 BEAVER LODGE
GRAND JUNCTION, CO 81505
Owner Name(s): BARKER AUTUMN
Joint Owner BARKER CONNIE
Neighborhood: Blue Heron Mead Sub (140.28)
Associated Parcel: N/A
Previous Parcel: 2701-341-00-018
Approx. Latitude: 39.112985
Approx. Longitude: -108.574190
Date of Aerial Photo: 2019 & 2024

Legal Description

LOT 1 BLK 1 BLUE HERON MEADOW SUBDIVISION SEC 34 1N 1W & AN UND INT IN TRACTS - 0.29AC

Tax Information

YearProperty CodeLand ActualImprovements ActualTotal ActualTotal Assessed (School)Total Assessed (Non-School)TAC CodeMill Levy (School)Mill Levy (Non-School)Total Mill LevyWater AssessmentProperty Tax & Water
20251112, 1212$175,000$633,800$808,800$57,020$50,5501030142.218024.819067.0370$0.00$3,661.87
20241112, 1212$158,520$601,000$759,520N/A$50,89010301N/AN/A71.1310$0.00$3,619.86

Taxing Authority Detail

YearAgency NameAgency Abbrev.TAC CodeMill LevyTotal (Assessed)Tax Per Agency
2025CITY OF GRAND JUNCTIONGRJCT10301 8.0000 $50,550 $404.40
2025COLORADO RIVER WATER CONSERVATIONCOLRW10301 0.5020 $50,550 $25.38
2025COUNTY - DEVELOP DISABLEDMCCCB10301 0.2190 $50,550 $11.07
2025COUNTY CAPITAL EXPEND (INACTIVE)MCCAP10301 0.0000 $50,550 $0.00
2025COUNTY GENERAL FUNDMCGF10301 8.3130 $50,550 $420.22
2025COUNTY LEASE-PURCHASE JAIL (INACTIVE)MCLP10301 0.0000 $50,550 $0.00
2025COUNTY ROAD & BRIDGE-1/2 LEVYMCRBS10301 0.1370 $50,550 $6.93
2025COUNTY TRANSLATOR TV FUNDMCTV10301 0.0280 $50,550 $1.42
2025GRAND RIVER MOSQUITO CTRLGRMCD10301 1.1820 $50,550 $59.75
2025GRAND VALLEY DRAINAGE DISTGVDD10301 1.6710 $50,550 $84.47
2025LIBRARY DISTRICTLIBR10301 2.9440 $50,550 $148.82
2025MESA CNTY ROAD & BRIDGE-GRAND JCTGJRB10301 0.1370 $50,550 $6.93
2025MESA COUNTY MCCNT10301 0.0000 $50,550 $0.00
2025SCHOOL DIST# 51 2004 OVERIDSD51O0610301 1.3270 $57,020 $75.67
2025SCHOOL DIST# 51 2017 OVERRIDESD51O_1710301 0.0000 $57,020 $0.00
2025SCHOOL DIST# 51 2024 OVERRIDESD51O_2410301 2.1570 $57,020 $122.99
2025SCHOOL DIST# 51 BONDSD51B10301 9.4760 $57,020 $540.32
2025SCHOOL DIST# 51 GENERALSD5110301 27.1260 $57,020 $1,546.72
2025SCHOOL DIST# 51 OVERRIDE 96SD51O10301 2.1320 $57,020 $121.57
2025SOCIAL SERVICESMCSS10301 1.6860 $50,550 $85.23
2025UTE WATER CONSERVANCYUTE10301 0.0000 $50,550 $0.00
 Tax Authority Contact Information Total Mill: 67.0370 Total Tax: $3,661.87

Sales & Conveyance Information **

DatePriceReception Number
(Click for Recorded Document)
Document Type
9/22/2025$0.003137706Quit Claim Deed
2/12/2025$0.003117157PT_DEED
1/29/2025$0.003115970CERT_PURCHASE
10/31/2024$0.003108342STMT_AUTHORITY
6/1/2021$551,000.002983611Warranty Deed
2/4/2010$0.002522446STMT_AUTHORITY
9/19/2005$0.002360175Quit Claim Deed
1/22/2007$0.002360174Quit Claim Deed
1/22/2007$0.002360159Plat
10/6/2004$0.002360129RESOLUTION
  Search Clerk RecordsDocument Type Descriptions

Land Description

Property Use CodeProperty Use TypeUnits
1112 SINGLE FAMILY RESIDENTIAL LAND 1
  Approximate Acres: 0.29 (Acreage is approximate and should not be used in lieu of Legal Documents)  

Photo 1 of 2

Loading Picture...

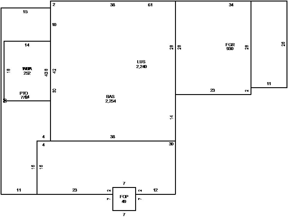
Building Sketch 1 of 1

Building Sketch 1

Loading Sketch...
  • Base Area(BAS) = 2254 sq.ft.
  • Finished Garage(FGR) = 930 sq.ft.
  • Finished Open Porch(FOP) = 301 sq.ft.
  • LARGE UPPER STORY(LUS) = 2240 sq.ft.
  • Patio(PTO) = 776 sq.ft.
  • Wood Deck,Balcony(WBA) = 252 sq.ft.
Building IDR019001RES1.1735714800000
Model Description:Residential
Building Use:SFR & TOWNHOUSE (1212)
Units:1
Arch Desc:TWO STORY
Quality:ABOVE AVERAGE
Actual Year Built:2007
Effective Year Built:2007
Rooms:10
Bedrooms:5
Bathrooms:4 BATH
Heat Type:RADIANT WATER
Heat Fuel:GAS
Heated SQ. FT.:4494
Air Conditioning:CENTRAL AIR
Frame:WOOD FRAME
Interior Wall:DRYWALL
Exterior Wall:STUCCO
Roof Cover:CONCRETE TILE
Roof Structure:GABLE OR HIP
Style:SFR
Stories:2
Comm. Wall Height:N/A
Comm. Fixtures:N/A

Miscellaneous Building Information

Year BuiltMiscellaneous DescriptionLength (ft.)Width (ft.)Units or Sq. Ft.
2007FIREPLACE-GAS LOG002.00
2007JETTED TUB002.00
Miscellaneous items above are not tied to a specific building

Historical Information