• Brent Goff, Assessor
  • Real Property Record
  • P.O. Box 20,000
  • 544 Rood Avenue
  • Grand Junction, CO 81502
This is an image of the Mesa County Logo with a picture of a monument Mesa County Home Page

Mesa County Assessor - Real Property Public Information Retrieval

Brent Goff, Assessor dataview Updated: 11/6/2025

Property Information(Report Date: 11/7/2025)


Parcel Number: 2701-363-07-003
Account Number: R019932
Property Use: Residential
Location Address: 743 WEDGE DR
GRAND JUNCTION, CO 81506
Mailing Address: 743 WEDGE DR
GRAND JUNCTION, CO 81506
Owner Name(s): JOHNSTON E DWIGHT
Joint Owner JOHNSTON DOROTHY SUE
Neighborhood: Fairway Park Sub (14.13)
Associated Parcel: N/A
Approx. Latitude: 39.112904
Approx. Longitude: -108.550988
Date of Aerial Photo: 2019 & 2024

Legal Description

LOT 5 BLK 1 FAIRWAY PK SEC 36 1N 1W

Tax Information

YearProperty CodeLand ActualImprovements ActualTotal ActualTotal Assessed (School)Total Assessed (Non-School)TAC CodeMill Levy (School)Mill Levy (Non-School)Total Mill LevyWater AssessmentProperty Tax & Water
20251112, 1212$155,000$522,930$677,930$47,800$42,3701410045.077024.278069.3550$0.00*$3,183.34
20241112, 1212$135,530$379,630$515,160N/A$34,52014100N/AN/A69.3550$0.00$2,394.13
20231112, 1212$135,530$379,630$515,160N/A$34,52014100N/AN/A69.0100$0.00$2,382.23
*Current estimated tax is using previous year's Mill Levy (Mill Levy determined in December of current year)

Taxing Authority Detail

YearAgency NameAgency Abbrev.TAC CodeMill LevyTotal (Assessed)Tax Per Agency
2025CITY OF GRAND JUNCTIONGRJCT14100 8.0000 $42,370 $338.96
2025COLORADO RIVER WATER CONSERVATIONCOLRW14100 0.5010 $42,370 $21.23
2025COUNTY - DEVELOP DISABLEDMCCCB14100 0.2190 $42,370 $9.28
2025COUNTY CAPITAL EXPEND (INACTIVE)MCCAP14100 0.0000 $42,370 $0.00
2025COUNTY GENERAL FUNDMCGF14100 9.3810 $42,370 $397.47
2025COUNTY LEASE-PURCHASE JAIL (INACTIVE)MCLP14100 0.0000 $42,370 $0.00
2025COUNTY ROAD & BRIDGE-1/2 LEVYMCRBS14100 0.1370 $42,370 $5.80
2025COUNTY TRANSLATOR TV FUNDMCTV14100 0.0280 $42,370 $1.19
2025GRAND RIVER MOSQUITO CTRLGRMCD14100 1.1840 $42,370 $50.17
2025LIBRARY DISTRICTLIBR14100 3.0050 $42,370 $127.32
2025MESA CNTY ROAD & BRIDGE-GRAND JCTGJRB14100 0.1370 $42,370 $5.80
2025MESA COUNTY MCCNT14100 0.0000 $42,370 $0.00
2025SCHOOL DIST# 51 2004 OVERIDSD51O0614100 1.5890 $47,800 $75.95
2025SCHOOL DIST# 51 2017 OVERRIDESD51O_1714100 0.0000 $47,800 $0.00
2025SCHOOL DIST# 51 2024 OVERRIDESD51O_2414100 2.5810 $47,800 $123.37
2025SCHOOL DIST# 51 BONDSD51B14100 11.3250 $47,800 $541.34
2025SCHOOL DIST# 51 GENERALSD5114100 27.0880 $47,800 $1,294.81
2025SCHOOL DIST# 51 OVERRIDE 96SD51O14100 2.4940 $47,800 $119.21
2025SOCIAL SERVICESMCSS14100 1.6860 $42,370 $71.44
2025UTE WATER CONSERVANCYUTE14100 0.0000 $42,370 $0.00
 Tax Authority Contact Information Total Mill: 69.3550 Total Tax: *$3,183.34

Sales & Conveyance Information **

DatePriceReception Number
(Click for Recorded Document)
Document Type
4/17/2024$675,000.003090785SWD JT
5/5/2020$475,000.002923056Warranty Deed
5/24/2011$0.002573030Quit Claim Deed
1/2/2003$234,900.002101899Warranty Deed JT
7/17/2002$0.002066946Quit Claim Deed
10/22/1999$180,000.001925418Warranty Deed JT
  Search Clerk RecordsDocument Type Descriptions

Land Description

Property Use CodeProperty Use TypeUnits
1112 SINGLE FAMILY RESIDENTIAL LAND 1
  Approximate Acres: 0.83 (Acreage is approximate and should not be used in lieu of Legal Documents)  

Photo 1 of 5

Loading Picture...

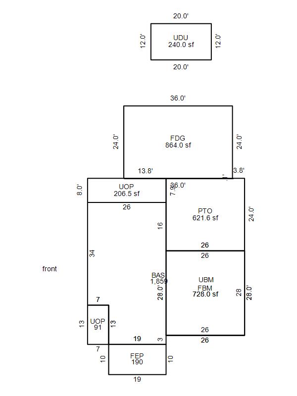
Building Sketch 1 of 1

Building Sketch 1

Loading Sketch...
  • Base Area(BAS) = 1859 sq.ft.
  • Fin Basement(FBM) = 728 sq.ft.
  • Fin Det Garage(FDG) = 864 sq.ft.
  • Finished Encl Porch(FEP) = 190 sq.ft.
  • Patio(PTO) = 621.6 sq.ft.
  • Unfinished Basement(UBM) = 728 sq.ft.
  • Unfin Open Porch(UOP) = 297.5 sq.ft.
  • Unfin Det Utility(UDU) = 240 sq.ft.
Building IDR019932RES1.1735714800004
Model Description:Residential
Building Use:SFR & TOWNHOUSE (1212)
Units:1
Arch Desc:TRI LEVEL
Quality:ABOVE AVERAGE
Actual Year Built:1959
Effective Year Built:2010
Rooms:5
Bedrooms:4
Bathrooms:3 1/4 BATH
Heat Type:HOT WATER
Heat Fuel:GAS
Heated SQ. FT.:2587
Air Conditioning:ROOF TOP AIR
Frame:WOOD FRAME
Interior Wall:WALL BD OR WOOD
Exterior Wall:WOOD SIDING
Roof Cover:RUBBER MEMBRANE
Roof Structure:GABLE OR HIP
Style:SFR
Stories:1
Comm. Wall Height:N/A
Comm. Fixtures:N/A

Miscellaneous Building Information

Year BuiltMiscellaneous DescriptionLength (ft.)Width (ft.)Units or Sq. Ft.
1959FIREPLACE 2 STACK001.00
Miscellaneous items above are not tied to a specific building

Historical Information