• Brent Goff, Assessor
  • Real Property Record
  • P.O. Box 20,000
  • 544 Rood Avenue
  • Grand Junction, CO 81502
This is an image of the Mesa County Logo with a picture of a monument Mesa County Home Page

Mesa County Assessor - Real Property Public Information Retrieval

Brent Goff, Assessor dataview Updated: 3/4/2026

Property Information(Report Date: 3/5/2026)


Parcel Number: 2943-081-00-014
Account Number: R033465
Property Use: Residential
Location Address: 2976 ORCHARD AVE
GRAND JUNCTION, CO 81504
Mailing Address: 2976 ORCHARD AVE
GRAND JUNCTION, CO 81504
Owner Name(s): GARCIA LUIS A
Joint Owner
Neighborhood: Econ 30 M+B #17 MH (720013.76)
Associated Parcel: N/A
Approx. Latitude: 39.084790
Approx. Longitude: -108.500899
Date of Aerial Photo: 2019 & 2024

Legal Description

THAT PT S2SW4SE4NE4 SEC 8 1S 1E S OF G V CNL EXC S 30FT FOR RD ROW AS DESC IN B-1868 P-892 MESA CO RECDS

Tax Information

YearProperty CodeLand ActualImprovements ActualTotal ActualTotal Assessed (School)Total Assessed (Non-School)TAC CodeMill Levy (School)Mill Levy (Non-School)Total Mill LevyWater AssessmentProperty Tax & Water
20251112, 1212$46,500$104,980$151,480$10,680$9,4701080042.218026.487068.7050$0.00$701.72
20241112, 1212$28,560$54,390$82,950N/A$5,55010800N/AN/A72.7760$0.00$403.91

Taxing Authority Detail

YearAgency NameAgency Abbrev.TAC CodeMill LevyTotal (Assessed)Tax Per Agency
2025COLORADO RIVER WATER CONSERVATIONCOLRW10800 0.5020 $9,470 $4.75
2025COUNTY - DEVELOP DISABLEDMCCCB10800 0.2190 $9,470 $2.07
2025COUNTY CAPITAL EXPEND (INACTIVE)MCCAP10800 0.0000 $9,470 $0.00
2025COUNTY GENERAL FUNDMCGF10800 8.3130 $9,470 $78.72
2025COUNTY LEASE-PURCHASE JAIL (INACTIVE)MCLP10800 0.0000 $9,470 $0.00
2025COUNTY ROAD & BRIDGE-FULL LEVYMCR_B10800 0.2740 $9,470 $2.59
2025COUNTY TRANSLATOR TV FUNDMCTV10800 0.0280 $9,470 $0.27
2025GRAND JUNCTION RURAL FIREGJFD10800 9.6680 $9,470 $91.56
2025GRAND RIVER MOSQUITO CTRLGRMCD10800 1.1820 $9,470 $11.19
2025GRAND VALLEY DRAINAGE DISTGVDD10800 1.6710 $9,470 $15.82
2025LIBRARY DISTRICTLIBR10800 2.9440 $9,470 $27.88
2025MESA COUNTY MCCNT10800 0.0000 $9,470 $0.00
2025SCHOOL DIST# 51 2004 OVERIDSD51O0610800 1.3270 $10,680 $14.17
2025SCHOOL DIST# 51 2017 OVERRIDESD51O_1710800 0.0000 $10,680 $0.00
2025SCHOOL DIST# 51 2024 OVERRIDESD51O_2410800 2.1570 $10,680 $23.04
2025SCHOOL DIST# 51 BONDSD51B10800 9.4760 $10,680 $101.20
2025SCHOOL DIST# 51 GENERALSD5110800 27.1260 $10,680 $289.71
2025SCHOOL DIST# 51 OVERRIDE 96SD51O10800 2.1320 $10,680 $22.77
2025SOCIAL SERVICESMCSS10800 1.6860 $9,470 $15.97
2025UTE WATER CONSERVANCYUTE10800 0.0000 $9,470 $0.00
 Tax Authority Contact Information Total Mill: 68.7050 Total Tax: $701.72

Sales & Conveyance Information **

DatePriceReception Number
(Click for Recorded Document)
Document Type
1/15/2010$0.002519826MHAFF
1/15/2010$99,900.002519823Warranty Deed
1/12/2010 2519094MH CERT OF PERM LOC
12/18/2009 2516459Quit Claim Deed
6/1/1999$8,500.001906149Warranty Deed
12/3/1991$0.001587659Warranty Deed
10/30/1991$0.001586084Contract
  Search Clerk RecordsDocument Type Descriptions

Land Description

Property Use CodeProperty Use TypeUnits
1112 SINGLE FAMILY RESIDENTIAL LAND 1
  Approximate Acres: 0.49 (Acreage is approximate and should not be used in lieu of Legal Documents)  

One Photo Available

Loading Picture...

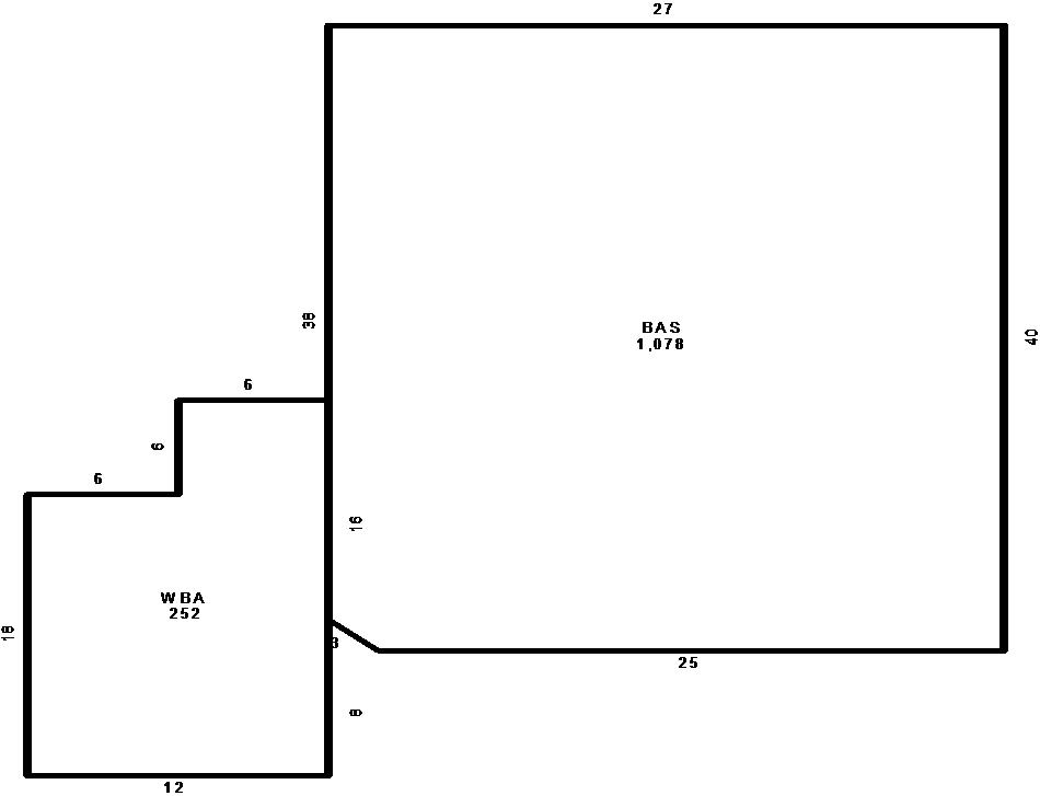
Building Sketch 1 of 1

Building Sketch 1

Loading Sketch...
  • Base Area(BAS) = 1078 sq.ft.
  • Wood Deck,Balcony(WBA) = 252 sq.ft.
Building IDMOD169S83.1735714800000
Model Description:Mobile Home
Building Use:SFR & TOWNHOUSE (1212)
Units:1
Arch Desc:MFG DOUBLE
Quality:AVERAGE QUALITY
Actual Year Built:2000
Effective Year Built:2000
Rooms:5
Bedrooms:3
Bathrooms:2 BATH
Heat Type:FORCED AIR HEAT
Heat Fuel:GAS
Heated SQ. FT.:1078
Air Conditioning:ROOF TOP AIR
Frame:STEEL
Interior Wall:WALL BD OR WOOD
Exterior Wall:ALUM/VINYL SID
Roof Cover:ASPH/COMP SHNGL
Roof Structure:GABLE OR HIP
Style:FACTORY BUILT
Stories:1
Comm. Wall Height:N/A
Comm. Fixtures:N/A

There are no Miscellaneous items associated with this record

Historical Information