• Brent Goff, Assessor
  • Real Property Record
  • P.O. Box 20,000
  • 544 Rood Avenue
  • Grand Junction, CO 81502
This is an image of the Mesa County Logo with a picture of a monument Mesa County Home Page

Mesa County Assessor - Real Property Public Information Retrieval

Brent Goff, Assessor dataview Updated: 3/4/2026

Property Information(Report Date: 3/5/2026)


Parcel Number: 2943-092-52-002
Account Number: R036079
Property Use: Residential
Location Address: 581 AGANA DR
GRAND JUNCTION, CO 81504
Mailing Address: 581 AGANA ST
GRAND JUNCTION, CO 81504
Owner Name(s): BUSHTA CURTIS H
Joint Owner
Neighborhood: Wintergreen Estates (13.31)
Associated Parcel: N/A
Approx. Latitude: 39.089042
Approx. Longitude: -108.494339
Date of Aerial Photo: 2019 & 2024

Legal Description

LOT 2 BLK 7 WINTERGREEN ESTATES SEC 9 1S 1E

Tax Information

YearProperty CodeLand ActualImprovements ActualTotal ActualTotal Assessed (School)Total Assessed (Non-School)TAC CodeMill Levy (School)Mill Levy (Non-School)Total Mill LevyWater AssessmentProperty Tax & Water
20251112, 1212$88,000$305,490$393,490$27,740$24,5901611242.218028.371070.5890$105.00$1,973.77
20241112, 1212$72,760$254,250$327,010N/A$21,90016112N/AN/A74.6830$105.00$1,740.56

Taxing Authority Detail

YearAgency NameAgency Abbrev.TAC CodeMill LevyTotal (Assessed)Tax Per Agency
2025CLIFTON FIRE PROTECTIONCFD16112 11.5520 $24,590 $284.06
2025CLIFTON WATER DISTRICTCWD16112 0.0000 $24,590 $0.00
2025COLORADO RIVER WATER CONSERVATIONCOLRW16112 0.5020 $24,590 $12.34
2025COUNTY - DEVELOP DISABLEDMCCCB16112 0.2190 $24,590 $5.39
2025COUNTY CAPITAL EXPEND (INACTIVE)MCCAP16112 0.0000 $24,590 $0.00
2025COUNTY GENERAL FUNDMCGF16112 8.3130 $24,590 $204.42
2025COUNTY LEASE-PURCHASE JAIL (INACTIVE)MCLP16112 0.0000 $24,590 $0.00
2025COUNTY ROAD & BRIDGE-FULL LEVYMCR_B16112 0.2740 $24,590 $6.74
2025COUNTY TRANSLATOR TV FUNDMCTV16112 0.0280 $24,590 $0.69
2025GRAND RIVER MOSQUITO CTRLGRMCD16112 1.1820 $24,590 $29.07
2025GRAND VALLEY DRAINAGE DISTGVDD16112 1.6710 $24,590 $41.09
2025LIBRARY DISTRICTLIBR16112 2.9440 $24,590 $72.39
2025MESA COUNTY MCCNT16112 0.0000 $24,590 $0.00
2025SCHOOL DIST# 51 2004 OVERIDSD51O0616112 1.3270 $27,740 $36.81
2025SCHOOL DIST# 51 2017 OVERRIDESD51O_1716112 0.0000 $27,740 $0.00
2025SCHOOL DIST# 51 2024 OVERRIDESD51O_2416112 2.1570 $27,740 $59.84
2025SCHOOL DIST# 51 BONDSD51B16112 9.4760 $27,740 $262.86
2025SCHOOL DIST# 51 GENERALSD5116112 27.1260 $27,740 $752.48
2025SCHOOL DIST# 51 OVERRIDE 96SD51O16112 2.1320 $27,740 $59.14
2025SOCIAL SERVICESMCSS16112 1.6860 $24,590 $41.46
2025UTE WATER CONSERVANCYUTE16112 0.0000 $24,590 $0.00
 Tax Authority Contact Information Total Mill: 70.5890 Total Tax: $1,973.77

Sales & Conveyance Information **

DatePriceReception Number
(Click for Recorded Document)
Document Type
8/7/2020$320,000.002936895Warranty Deed
3/5/2020$180,000.002915995PER_REP_DEED
2/19/2020$0.002914072Letters
2/16/2010$0.002523506Quit Claim Deed
12/20/2000$0.002038101Quit Claim Deed
12/20/2000$0.001978959Quit Claim Deed
12/20/2000$0.001978211Quit Claim Deed
7/27/1995$107,500.001725289Warranty Deed JT
9/3/1991$84,000.001580120Warranty Deed JT
  Search Clerk RecordsDocument Type Descriptions

Land Description

Property Use CodeProperty Use TypeUnits
1112 SINGLE FAMILY RESIDENTIAL LAND 1
  Approximate Acres: 0.23 (Acreage is approximate and should not be used in lieu of Legal Documents)  

Photo 1 of 4

Loading Picture...

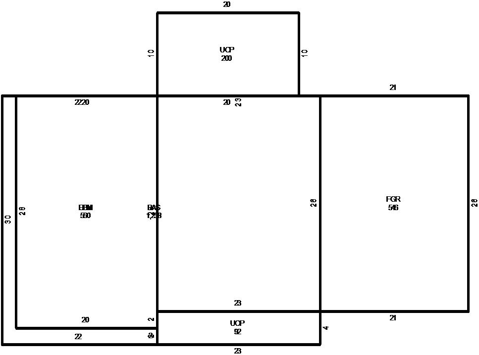
Building Sketch 1 of 1

Building Sketch 1

Loading Sketch...
  • Base Area(BAS) = 1258 sq.ft.
  • Fin Basement(FBM) = 560 sq.ft.
  • Finished Garage(FGR) = 546 sq.ft.
  • Unfinished Basement(UBM) = 560 sq.ft.
  • Unfin Open Porch(UOP) = 292 sq.ft.
Building IDR036079RES1.1735714800000
Model Description:Residential
Building Use:SFR & TOWNHOUSE (1212)
Units:1
Arch Desc:TRI LEVEL
Quality:AVERAGE
Actual Year Built:1981
Effective Year Built:2000
Rooms:8
Bedrooms:4
Bathrooms:2 3/4 BATH
Heat Type:FORCED AIR HEAT
Heat Fuel:GAS
Heated SQ. FT.:1818
Air Conditioning:ROOF TOP AIR
Frame:WOOD FRAME
Interior Wall:DRYWALL
Exterior Wall:STUCCO
Roof Cover:ASPH/COMP SHNGL
Roof Structure:GABLE OR HIP
Style:SFR
Stories:1
Comm. Wall Height:N/A
Comm. Fixtures:N/A

Miscellaneous Building Information

Year BuiltMiscellaneous DescriptionLength (ft.)Width (ft.)Units or Sq. Ft.
1981FIREPLACE  1.00
Miscellaneous items above are not tied to a specific building

Historical Information