• Brent Goff, Assessor
  • Real Property Record
  • P.O. Box 20,000
  • 544 Rood Avenue
  • Grand Junction, CO 81502
This is an image of the Mesa County Logo with a picture of a monument Mesa County Home Page

Mesa County Assessor - Real Property Public Information Retrieval

Brent Goff, Assessor dataview Updated: 1/6/2026

Property Information(Report Date: 1/7/2026)


Parcel Number: 2943-094-00-078
Account Number: R036381
Property Use: Residential
Location Address: 3098 E RD
GRAND JUNCTION, CO 81504
Mailing Address: 970 YUMA ST UNIT 170
DENVER, CO 80204
Owner Name(s): H2 PROPERTIES INC
Joint Owner
Neighborhood: AREA 21 M&B AYB 1940>; 2001-2500SF (21.72)
Associated Parcel: N/A
Approx. Latitude: 39.078050
Approx. Longitude: -108.478392
Date of Aerial Photo: 2019 & 2024

Legal Description

BEG SE COR SEC 9 1S 1E UM W 257FT N 535FT E 97FT S 70FT E 160FT S 465FT TO BEG EXC RD ROW RECD 10/28/2019 R-2900511 & EXC RD ROW RECD 6/21/2021 R-2986758 MESA CO RECDS - 2.72 AC

Tax Information

YearProperty CodeLand ActualImprovements ActualTotal ActualTotal Assessed (School)Total Assessed (Non-School)TAC CodeMill Levy (School)Mill Levy (Non-School)Total Mill LevyWater AssessmentProperty Tax & Water
20251112, 1212$150,000$418,220$568,220$40,060$35,5201561242.218028.462070.6800$0.00$2,702.22
20244117, 4277, 4279$4,220$257,550$261,770N/A$18,63015612N/AN/A74.7740$0.00$1,393.04
20234117, 4277, 4279$4,220$257,550$261,770N/A$18,63015612N/AN/A74.3430$0.00$1,385.01

Taxing Authority Detail

YearAgency NameAgency Abbrev.TAC CodeMill LevyTotal (Assessed)Tax Per Agency
2025CLIFTON FIRE PROTECTIONCFD15612 11.5520 $35,520 $410.33
2025CLIFTON WATER DISTRICTCWD15612 0.0000 $35,520 $0.00
2025COLORADO RIVER WATER CONSERVATIONCOLRW15612 0.5020 $35,520 $17.83
2025COUNTY - DEVELOP DISABLEDMCCCB15612 0.2190 $35,520 $7.78
2025COUNTY CAPITAL EXPEND (INACTIVE)MCCAP15612 0.0000 $35,520 $0.00
2025COUNTY GENERAL FUNDMCGF15612 8.3130 $35,520 $295.28
2025COUNTY LEASE-PURCHASE JAIL (INACTIVE)MCLP15612 0.0000 $35,520 $0.00
2025COUNTY ROAD & BRIDGE-FULL LEVYMCR_B15612 0.2740 $35,520 $9.73
2025COUNTY TRANSLATOR TV FUNDMCTV15612 0.0280 $35,520 $0.99
2025GRAND RIVER MOSQUITO CTRLGRMCD15612 1.1820 $35,520 $41.98
2025GRAND VALLEY DRAINAGE DISTGVDD15612 1.6710 $35,520 $59.35
2025LIBRARY DISTRICTLIBR15612 2.9440 $35,520 $104.57
2025MESA COUNTY MCCNT15612 0.0000 $35,520 $0.00
2025SCHOOL DIST# 51 2004 OVERIDSD51O0615612 1.3270 $40,060 $53.16
2025SCHOOL DIST# 51 2017 OVERRIDESD51O_1715612 0.0000 $40,060 $0.00
2025SCHOOL DIST# 51 2024 OVERRIDESD51O_2415612 2.1570 $40,060 $86.41
2025SCHOOL DIST# 51 BONDSD51B15612 9.4760 $40,060 $379.61
2025SCHOOL DIST# 51 GENERALSD5115612 27.1260 $40,060 $1,086.67
2025SCHOOL DIST# 51 OVERRIDE 96SD51O15612 2.1320 $40,060 $85.41
2025SOCIAL SERVICESMCSS15612 1.6860 $35,520 $59.89
2025UPPER GRAND VALLEY PESTUP15612 0.0910 $35,520 $3.23
2025UTE WATER CONSERVANCYUTE15612 0.0000 $35,520 $0.00
 Tax Authority Contact Information Total Mill: 70.6800 Total Tax: $2,702.22

Sales & Conveyance Information **

DatePriceReception Number
(Click for Recorded Document)
Document Type
3/20/1943 406552Warranty Deed JT
10/30/2025$0.003141424Quit Claim Deed
9/30/2025$0.003138567PT_DEED
9/10/2025$0.003136721CERT_PURCHASE
4/8/2022$583,000.003026684SWD
6/21/2021$0.002986758Warranty Deed
6/15/2021$0.002985754RESOLUTION
6/11/2020$0.002927990SUPPL_AFF
6/10/2020$276,000.002927806Warranty Deed
10/28/2019$0.002900511Quit Claim Deed
10/21/2019$0.002899701RESOLUTION
12/8/2017$0.002823734STMT_AUTHORITY
2/3/2016$0.002750235DEATH_CERT
2/14/1994$89,900.001671281Warranty Deed JT
2/14/1994$0.001671280Affidavit
10/6/1993$0.001655844Warranty Deed JT
1/27/1993$0.001627893DEATH_CERT
  Search Clerk RecordsDocument Type Descriptions

Land Description

Property Use CodeProperty Use TypeUnits
1112 SINGLE FAMILY RESIDENTIAL LAND 1
  Approximate Acres: 2.71 (Acreage is approximate and should not be used in lieu of Legal Documents)  

Photo 1 of 4

Loading Picture...

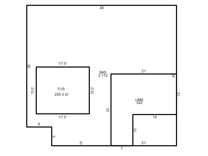
Building Sketch 1 of 1

Building Sketch 1

Loading Sketch...
  • Base Area(BAS) = 2112 sq.ft.
  • Finished Upper Story(FUS) = 255 sq.ft.
  • Unfinished Basement(UBM) = 343 sq.ft.
Building IDR036381RES1.1735714800001
Model Description:Residential
Building Use:SFR & TOWNHOUSE (1212)
Units:1
Arch Desc:1 1/2 STORY
Quality:ABOVE AVERAGE
Actual Year Built:1915
Effective Year Built:2000
Rooms:8
Bedrooms:5
Bathrooms:3 BATH
Heat Type:FORCED AIR HEAT
Heat Fuel:GAS
Heated SQ. FT.:2367
Air Conditioning:CENTRAL AIR
Frame:WOOD FRAME
Interior Wall:DRYWALL
Exterior Wall:WOOD SIDING
Roof Cover:ASPH/COMP SHNGL
Roof Structure:GABLE OR HIP
Style:SFR
Stories:1.5
Comm. Wall Height:N/A
Comm. Fixtures:N/A

Miscellaneous Building Information

Year BuiltMiscellaneous DescriptionLength (ft.)Width (ft.)Units or Sq. Ft.
1915FIREPLACE  1.00
1970CLASS D UTILITY, LOW / WOOD3614504.00
Miscellaneous items above are not tied to a specific building

Historical Information