• Brent Goff, Assessor
  • Real Property Record
  • P.O. Box 20,000
  • 544 Rood Avenue
  • Grand Junction, CO 81502
This is an image of the Mesa County Logo with a picture of a monument Mesa County Home Page

Mesa County Assessor - Real Property Public Information Retrieval

Brent Goff, Assessor dataview Updated: 1/6/2026

Property Information(Report Date: 1/7/2026)


Parcel Number: 2943-161-29-003
Account Number: R042466
Property Use: Residential
Location Address: 3090 ABERDEEN LN
GRAND JUNCTION, CO 81504
Mailing Address: 257 ASPEN CIR
BLACK HAWK, CO 80422
Owner Name(s): DERIZZO DEAN JOHN
Joint Owner
Neighborhood: Dakota West (21.45)
Associated Parcel: N/A
Previous Parcel: 2943-161-98-011
Approx. Latitude: 39.072337
Approx. Longitude: -108.479746
Date of Aerial Photo: 2019 & 2024

Legal Description

LOT 3 BLK 3 DAKOTA WEST SUBDIVISION PHASE 2 SEC 16 1S 1E & AN UND INT IN TRACTS - 0.15AC

Tax Information

YearProperty CodeLand ActualImprovements ActualTotal ActualTotal Assessed (School)Total Assessed (Non-School)TAC CodeMill Levy (School)Mill Levy (Non-School)Total Mill LevyWater AssessmentProperty Tax & Water
20251112, 1212$58,000$315,270$373,270$26,320$23,3301591042.218024.910067.1280$0.00$1,692.33
20241112, 1212$51,910$300,950$352,860N/A$23,64015910N/AN/A71.2220$0.00$1,683.69
20231112, 1212$51,910$300,950$352,860N/A$23,64015910N/AN/A70.7910$0.00$1,673.50

Taxing Authority Detail

YearAgency NameAgency Abbrev.TAC CodeMill LevyTotal (Assessed)Tax Per Agency
2025CITY OF GRAND JUNCTIONGRJCT15910 8.0000 $23,330 $186.64
2025CLIFTON WATER DISTRICTCWD15910 0.0000 $23,330 $0.00
2025COLORADO RIVER WATER CONSERVATIONCOLRW15910 0.5020 $23,330 $11.71
2025COUNTY - DEVELOP DISABLEDMCCCB15910 0.2190 $23,330 $5.11
2025COUNTY CAPITAL EXPEND (INACTIVE)MCCAP15910 0.0000 $23,330 $0.00
2025COUNTY GENERAL FUNDMCGF15910 8.3130 $23,330 $193.94
2025COUNTY LEASE-PURCHASE JAIL (INACTIVE)MCLP15910 0.0000 $23,330 $0.00
2025COUNTY ROAD & BRIDGE-1/2 LEVYMCRBS15910 0.1370 $23,330 $3.20
2025COUNTY TRANSLATOR TV FUNDMCTV15910 0.0280 $23,330 $0.65
2025GRAND RIVER MOSQUITO CTRLGRMCD15910 1.1820 $23,330 $27.58
2025GRAND VALLEY DRAINAGE DISTGVDD15910 1.6710 $23,330 $38.98
2025LIBRARY DISTRICTLIBR15910 2.9440 $23,330 $68.68
2025MESA CNTY ROAD & BRIDGE-GRAND JCTGJRB15910 0.1370 $23,330 $3.20
2025MESA COUNTY MCCNT15910 0.0000 $23,330 $0.00
2025SCHOOL DIST# 51 2004 OVERIDSD51O0615910 1.3270 $26,320 $34.93
2025SCHOOL DIST# 51 2017 OVERRIDESD51O_1715910 0.0000 $26,320 $0.00
2025SCHOOL DIST# 51 2024 OVERRIDESD51O_2415910 2.1570 $26,320 $56.77
2025SCHOOL DIST# 51 BONDSD51B15910 9.4760 $26,320 $249.41
2025SCHOOL DIST# 51 GENERALSD5115910 27.1260 $26,320 $713.96
2025SCHOOL DIST# 51 OVERRIDE 96SD51O15910 2.1320 $26,320 $56.11
2025SOCIAL SERVICESMCSS15910 1.6860 $23,330 $39.33
2025UPPER GRAND VALLEY PESTUP15910 0.0910 $23,330 $2.12
2025UTE WATER CONSERVANCYUTE15910 0.0000 $23,330 $0.00
 Tax Authority Contact Information Total Mill: 67.1280 Total Tax: $1,692.33

Sales & Conveyance Information **

DatePriceReception Number
(Click for Recorded Document)
Document Type
7/17/2023$0.003069252COV_DEC_BYLAWS
1/29/2020$275,500.002911640Warranty Deed
2/26/2010$0.002524609EXCLUSION
8/23/2006$236,200.002334787Warranty Deed JT
10/14/2005$44,000.002281544Warranty Deed
7/24/2003$0.002136663Plat
6/24/2003$0.002129446Quit Claim Deed
  Search Clerk RecordsDocument Type Descriptions

Land Description

Property Use CodeProperty Use TypeUnits
1112 SINGLE FAMILY RESIDENTIAL LAND 1
  Approximate Acres: 0.15 (Acreage is approximate and should not be used in lieu of Legal Documents)  

Photo 1 of 2

Loading Picture...

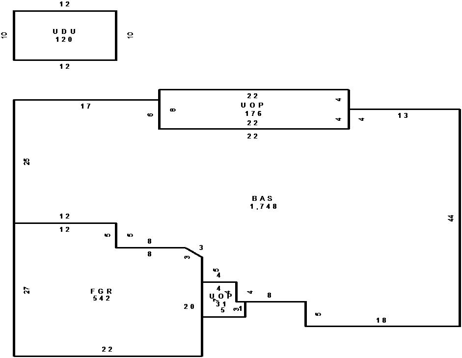
Building Sketch 1 of 1

Building Sketch 1

Loading Sketch...
  • Base Area(BAS) = 1748 sq.ft.
  • Finished Garage(FGR) = 542 sq.ft.
  • Unfin Open Porch(UOP) = 207 sq.ft.
  • Unfin Det Utility(UDU) = 120 sq.ft.
Building IDR042466RES1.1735714800000
Model Description:Residential
Building Use:SFR & TOWNHOUSE (1212)
Units:1
Arch Desc:RANCH
Quality:AVERAGE
Actual Year Built:2006
Effective Year Built:2006
Rooms:6
Bedrooms:3
Bathrooms:2 BATH
Heat Type:FORCED AIR HEAT
Heat Fuel:GAS
Heated SQ. FT.:1748
Air Conditioning:CENTRAL AIR
Frame:WOOD FRAME
Interior Wall:DRYWALL
Exterior Wall:STUCCO
Roof Cover:ASPH/COMP SHNGL
Roof Structure:GABLE OR HIP
Style:SFR
Stories:1
Comm. Wall Height:N/A
Comm. Fixtures:N/A

Miscellaneous Building Information

Year BuiltMiscellaneous DescriptionLength (ft.)Width (ft.)Units or Sq. Ft.
2006FIREPLACE-GAS LOG001.00
Miscellaneous items above are not tied to a specific building

Historical Information