• Brent Goff, Assessor
  • Real Property Record
  • P.O. Box 20,000
  • 544 Rood Avenue
  • Grand Junction, CO 81502
This is an image of the Mesa County Logo with a picture of a monument Mesa County Home Page

Mesa County Assessor - Real Property Public Information Retrieval

Brent Goff, Assessor dataview Updated: 1/6/2026

Property Information(Report Date: 1/7/2026)


Parcel Number: 2943-191-39-005
Account Number: R045387
Property Use: Residential
Location Address: 2861 MASON DR
GRAND JUNCTION, CO 81501
Mailing Address: 2861 MASON DR
GRAND JUNCTION, CO 81501
Owner Name(s): BACA DANIELA ELIZABETH BACA
Joint Owner RIVERA JESUS AGUIRRE
Neighborhood: White Willows Sub (19.10)
Associated Parcel: N/A
Previous Parcel: 2943-191-29-003
Approx. Latitude: 39.060065
Approx. Longitude: -108.522235
Date of Aerial Photo: 2019 & 2024

Legal Description

LOT 5 BLK 5 WHITE WILLOWS FILING TWO SEC 19 1S 1E UM AND AN UND INT IN TRACTS - 0.20AC

Tax Information

YearProperty CodeLand ActualImprovements ActualTotal ActualTotal Assessed (School)Total Assessed (Non-School)TAC CodeMill Levy (School)Mill Levy (Non-School)Total Mill LevyWater AssessmentProperty Tax & Water
20251112, 1212$95,000$246,660$341,660$24,090$21,3601030142.218024.819067.0370$0.00$1,547.17
20241112, 1212$76,750$241,860$318,610N/A$21,34010301N/AN/A71.1310$0.00$1,517.94
20231112, 1212$76,750$241,860$318,610N/A$21,34010301N/AN/A70.7020$0.00$1,508.78

Taxing Authority Detail

YearAgency NameAgency Abbrev.TAC CodeMill LevyTotal (Assessed)Tax Per Agency
2025CITY OF GRAND JUNCTIONGRJCT10301 8.0000 $21,360 $170.88
2025COLORADO RIVER WATER CONSERVATIONCOLRW10301 0.5020 $21,360 $10.72
2025COUNTY - DEVELOP DISABLEDMCCCB10301 0.2190 $21,360 $4.68
2025COUNTY CAPITAL EXPEND (INACTIVE)MCCAP10301 0.0000 $21,360 $0.00
2025COUNTY GENERAL FUNDMCGF10301 8.3130 $21,360 $177.57
2025COUNTY LEASE-PURCHASE JAIL (INACTIVE)MCLP10301 0.0000 $21,360 $0.00
2025COUNTY ROAD & BRIDGE-1/2 LEVYMCRBS10301 0.1370 $21,360 $2.93
2025COUNTY TRANSLATOR TV FUNDMCTV10301 0.0280 $21,360 $0.60
2025GRAND RIVER MOSQUITO CTRLGRMCD10301 1.1820 $21,360 $25.25
2025GRAND VALLEY DRAINAGE DISTGVDD10301 1.6710 $21,360 $35.69
2025LIBRARY DISTRICTLIBR10301 2.9440 $21,360 $62.88
2025MESA CNTY ROAD & BRIDGE-GRAND JCTGJRB10301 0.1370 $21,360 $2.93
2025MESA COUNTY MCCNT10301 0.0000 $21,360 $0.00
2025SCHOOL DIST# 51 2004 OVERIDSD51O0610301 1.3270 $24,090 $31.97
2025SCHOOL DIST# 51 2017 OVERRIDESD51O_1710301 0.0000 $24,090 $0.00
2025SCHOOL DIST# 51 2024 OVERRIDESD51O_2410301 2.1570 $24,090 $51.96
2025SCHOOL DIST# 51 BONDSD51B10301 9.4760 $24,090 $228.28
2025SCHOOL DIST# 51 GENERALSD5110301 27.1260 $24,090 $653.47
2025SCHOOL DIST# 51 OVERRIDE 96SD51O10301 2.1320 $24,090 $51.36
2025SOCIAL SERVICESMCSS10301 1.6860 $21,360 $36.01
2025UTE WATER CONSERVANCYUTE10301 0.0000 $21,360 $0.00
 Tax Authority Contact Information Total Mill: 67.0370 Total Tax: $1,547.17

Sales & Conveyance Information **

DatePriceReception Number
(Click for Recorded Document)
Document Type
3/28/2025$417,000.003121236Warranty Deed
8/9/2019$265,000.002890411Warranty Deed
1/31/2017$193,600.002788916Warranty Deed JT
1/21/2011$0.002560550QCD JT
5/18/2007$222,400.002384109Warranty Deed JT
2/9/2007$80,000.002364077Warranty Deed
2/22/2005$0.002247160Affidavit
3/16/2005$0.002243692Plat
6/21/2002$0.002063931Quit Claim Deed
  Search Clerk RecordsDocument Type Descriptions

Land Description

Property Use CodeProperty Use TypeUnits
1112 SINGLE FAMILY RESIDENTIAL LAND 1
  Approximate Acres: 0.2 (Acreage is approximate and should not be used in lieu of Legal Documents)  

Photo 1 of 3

Loading Picture...

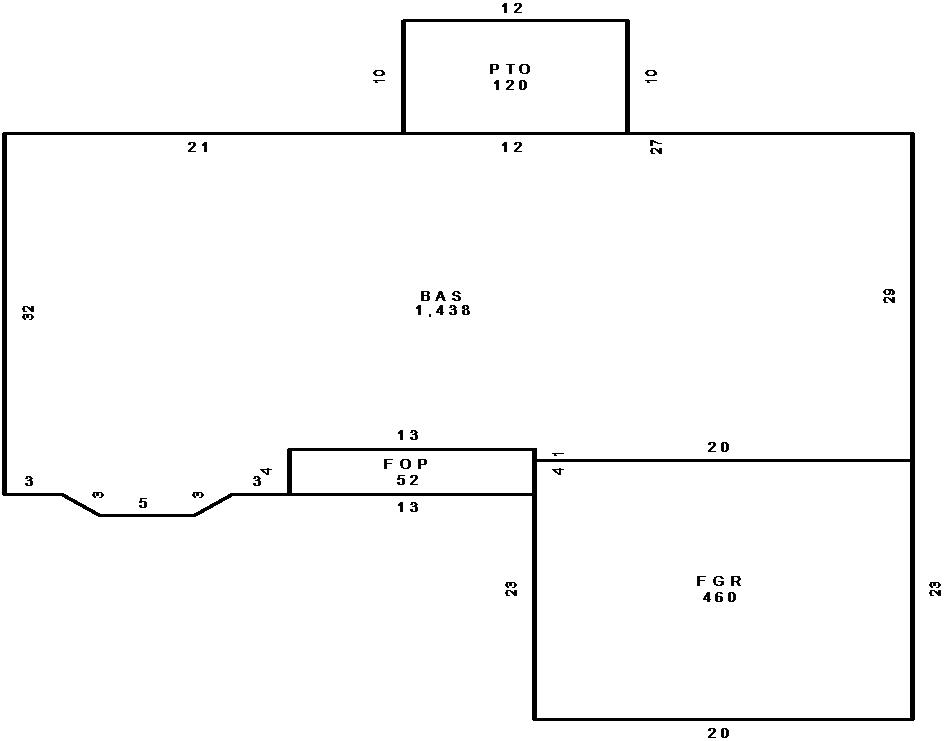
Building Sketch 1 of 1

Building Sketch 1

Loading Sketch...
  • Base Area(BAS) = 1438 sq.ft.
  • Finished Garage(FGR) = 460 sq.ft.
  • Finished Open Porch(FOP) = 52 sq.ft.
  • Patio(PTO) = 120 sq.ft.
Building IDR045387RES1.1735714800000
Model Description:Residential
Building Use:SFR & TOWNHOUSE (1212)
Units:1
Arch Desc:RANCH
Quality:AVERAGE
Actual Year Built:2007
Effective Year Built:2008
Rooms:5
Bedrooms:3
Bathrooms:2 BATH
Heat Type:FORCED AIR HEAT
Heat Fuel:GAS
Heated SQ. FT.:1438
Air Conditioning:CENTRAL AIR
Frame:WOOD FRAME
Interior Wall:DRYWALL
Exterior Wall:ALUM/VINYL SID
Roof Cover:ASPH/COMP SHNGL
Roof Structure:GABLE OR HIP
Style:SFR
Stories:1
Comm. Wall Height:N/A
Comm. Fixtures:N/A

There are no Miscellaneous items associated with this record

Historical Information