• Brent Goff, Assessor
  • Real Property Record
  • P.O. Box 20,000
  • 544 Rood Avenue
  • Grand Junction, CO 81502
This is an image of the Mesa County Logo with a picture of a monument Mesa County Home Page

Mesa County Assessor - Real Property Public Information Retrieval

Brent Goff, Assessor dataview Updated: 2/12/2026

Property Information(Report Date: 2/13/2026)


Parcel Number: 2945-244-07-006
Account Number: R070125
Property Use: Residential
Location Address: 310 ZUNI DR
GRAND JUNCTION, CO 81503
Mailing Address: 310 ZUNI DR
GRAND JUNCTION, CO 81503
Owner Name(s): ECHOLS THOMAS CHRISTOPHER
Joint Owner ECHOLS SAVANNA LEE
Neighborhood: Reservation Sub (18.44)
Associated Parcel: N/A
Approx. Latitude: 39.049588
Approx. Longitude: -108.535223
Date of Aerial Photo: 2019 & 2024

Legal Description

LOT 6 BLK 2 OPLINGER SUB SEC 24 1S 1W

Tax Information

YearProperty CodeLand ActualImprovements ActualTotal ActualTotal Assessed (School)Total Assessed (Non-School)TAC CodeMill Levy (School)Mill Levy (Non-School)Total Mill LevyWater AssessmentProperty Tax & Water
20251112, 1212$65,000$195,870$260,870$18,390$16,3001410042.218023.148065.3660$195.72$1,349.42
20241112, 1212$46,920$150,280$197,200N/A$13,21014100N/AN/A69.3550$181.72$1,097.90

Taxing Authority Detail

YearAgency NameAgency Abbrev.TAC CodeMill LevyTotal (Assessed)Tax Per Agency
2025CITY OF GRAND JUNCTIONGRJCT14100 8.0000 $16,300 $130.40
2025COLORADO RIVER WATER CONSERVATIONCOLRW14100 0.5020 $16,300 $8.18
2025COUNTY - DEVELOP DISABLEDMCCCB14100 0.2190 $16,300 $3.57
2025COUNTY CAPITAL EXPEND (INACTIVE)MCCAP14100 0.0000 $16,300 $0.00
2025COUNTY GENERAL FUNDMCGF14100 8.3130 $16,300 $135.50
2025COUNTY LEASE-PURCHASE JAIL (INACTIVE)MCLP14100 0.0000 $16,300 $0.00
2025COUNTY ROAD & BRIDGE-1/2 LEVYMCRBS14100 0.1370 $16,300 $2.23
2025COUNTY TRANSLATOR TV FUNDMCTV14100 0.0280 $16,300 $0.46
2025GRAND RIVER MOSQUITO CTRLGRMCD14100 1.1820 $16,300 $19.27
2025LIBRARY DISTRICTLIBR14100 2.9440 $16,300 $47.99
2025MESA CNTY ROAD & BRIDGE-GRAND JCTGJRB14100 0.1370 $16,300 $2.23
2025MESA COUNTY MCCNT14100 0.0000 $16,300 $0.00
2025SCHOOL DIST# 51 2004 OVERIDSD51O0614100 1.3270 $18,390 $24.40
2025SCHOOL DIST# 51 2017 OVERRIDESD51O_1714100 0.0000 $18,390 $0.00
2025SCHOOL DIST# 51 2024 OVERRIDESD51O_2414100 2.1570 $18,390 $39.67
2025SCHOOL DIST# 51 BONDSD51B14100 9.4760 $18,390 $174.26
2025SCHOOL DIST# 51 GENERALSD5114100 27.1260 $18,390 $498.85
2025SCHOOL DIST# 51 OVERRIDE 96SD51O14100 2.1320 $18,390 $39.21
2025SOCIAL SERVICESMCSS14100 1.6860 $16,300 $27.48
2025UTE WATER CONSERVANCYUTE14100 0.0000 $16,300 $0.00
 Tax Authority Contact Information Total Mill: 65.3660 Total Tax: $1,349.42

Sales & Conveyance Information **

DatePriceReception Number
(Click for Recorded Document)
Document Type
3/29/2024$322,000.003089096SWD JT
7/16/2020$0.002933338PER_REP_DEED
3/25/2020$0.002918559Letters
5/14/2019$167,000.002879700Warranty Deed
12/7/2001$0.002029764QCD JT
4/1/1997$68,200.001793718Warranty Deed
3/28/1991$51,000.001566571Warranty Deed
  Search Clerk RecordsDocument Type Descriptions

Land Description

Property Use CodeProperty Use TypeUnits
1112 SINGLE FAMILY RESIDENTIAL LAND 1
  Approximate Acres: 0.2 (Acreage is approximate and should not be used in lieu of Legal Documents)  

Photo 1 of 5

Loading Picture...

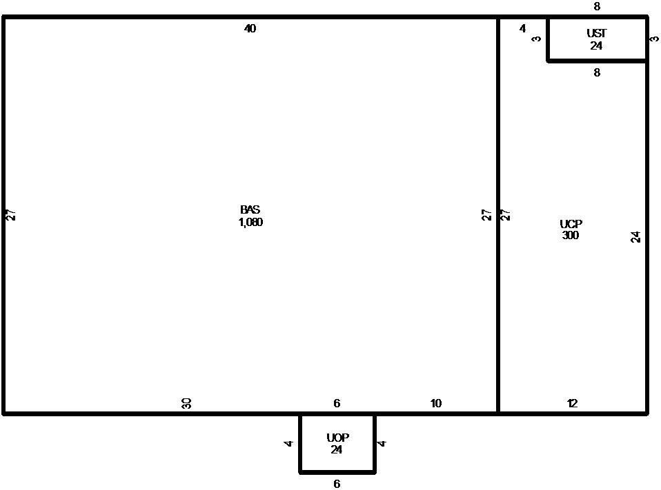
Building Sketch 1 of 1

Building Sketch 1

Loading Sketch...
  • Base Area(BAS) = 1080 sq.ft.
  • Unfinished Carport(UCP) = 300 sq.ft.
  • Unfinished Storage(UST) = 24 sq.ft.
  • Unfin Open Porch(UOP) = 24 sq.ft.
Building IDR070125RES1.1735714800000
Model Description:Residential
Building Use:SFR & TOWNHOUSE (1212)
Units:1
Arch Desc:RANCH
Quality:AVERAGE
Actual Year Built:1959
Effective Year Built:1959
Rooms:5
Bedrooms:3
Bathrooms:1 BATH
Heat Type:FORCED AIR HEAT
Heat Fuel:GAS
Heated SQ. FT.:1080
Air Conditioning:ROOF TOP AIR
Frame:WOOD FRAME
Interior Wall:WALL BD OR WOOD
Exterior Wall:FACE BRICK
Roof Cover:ASPH/COMP SHNGL
Roof Structure:GABLE OR HIP
Style:SFR
Stories:1
Comm. Wall Height:N/A
Comm. Fixtures:N/A

There are no Miscellaneous items associated with this record

Historical Information