• Brent Goff, Assessor
  • Real Property Record
  • P.O. Box 20,000
  • 544 Rood Avenue
  • Grand Junction, CO 81502
This is an image of the Mesa County Logo with a picture of a monument Mesa County Home Page

Mesa County Assessor - Real Property Public Information Retrieval

Brent Goff, Assessor dataview Updated: 4/21/2026

Property Information(Report Date: 4/22/2026)


Parcel Number: 2945-204-70-006
Account Number: R100277
Property Use: Residential
Location Address: 318 VENTANA CT
GRAND JUNCTION, CO 81507
Mailing Address: 318 VENTANA CT
GRAND JUNCTION, CO 81507
Owner Name(s): HASLER FAMILY TRUST
Joint Owner
Neighborhood: VENTANA AT REDLANDS MESA (16.34)
Associated Parcel: N/A
Previous Parcel: 294520467001
Approx. Latitude: 39.051969
Approx. Longitude: -108.610509
Date of Aerial Photo: 2019 & 2024

Legal Description

LOT 6 VENTANA AT REDLANDS MESA SEC 20 1S 1W UM -& AN UNDIV INT IN ALL OPEN SPACE TRACTS - 0.19AC

Tax Information

YearProperty CodeLand ActualImprovements ActualTotal ActualTotal Assessed (School)Total Assessed (Non-School)TAC CodeMill Levy (School)Mill Levy (Non-School)Total Mill LevyWater AssessmentProperty Tax & Water
20251112, 1212$125,000$989,810$1,114,810$78,590$69,6701410042.218023.148065.3660$0.00$4,930.63
20241112, 1212$143,290$761,530$904,820N/A$60,62014100N/AN/A69.3550$0.00$4,204.30

Taxing Authority Detail

YearAgency NameAgency Abbrev.TAC CodeMill LevyTotal (Assessed)Tax Per Agency
2025CITY OF GRAND JUNCTIONGRJCT14100 8.0000 $69,670 $557.36
2025COLORADO RIVER WATER CONSERVATIONCOLRW14100 0.5020 $69,670 $34.97
2025COUNTY - DEVELOP DISABLEDMCCCB14100 0.2190 $69,670 $15.26
2025COUNTY CAPITAL EXPEND (INACTIVE)MCCAP14100 0.0000 $69,670 $0.00
2025COUNTY GENERAL FUNDMCGF14100 8.3130 $69,670 $579.17
2025COUNTY LEASE-PURCHASE JAIL (INACTIVE)MCLP14100 0.0000 $69,670 $0.00
2025COUNTY ROAD & BRIDGE-1/2 LEVYMCRBS14100 0.1370 $69,670 $9.54
2025COUNTY TRANSLATOR TV FUNDMCTV14100 0.0280 $69,670 $1.95
2025GRAND RIVER MOSQUITO CTRLGRMCD14100 1.1820 $69,670 $82.35
2025LIBRARY DISTRICTLIBR14100 2.9440 $69,670 $205.11
2025MESA CNTY ROAD & BRIDGE-GRAND JCTGJRB14100 0.1370 $69,670 $9.54
2025MESA COUNTY MCCNT14100 0.0000 $69,670 $0.00
2025SCHOOL DIST# 51 2004 OVERIDSD51O0614100 1.3270 $78,590 $104.29
2025SCHOOL DIST# 51 2017 OVERRIDESD51O_1714100 0.0000 $78,590 $0.00
2025SCHOOL DIST# 51 2024 OVERRIDESD51O_2414100 2.1570 $78,590 $169.52
2025SCHOOL DIST# 51 BONDSD51B14100 9.4760 $78,590 $744.72
2025SCHOOL DIST# 51 GENERALSD5114100 27.1260 $78,590 $2,131.83
2025SCHOOL DIST# 51 OVERRIDE 96SD51O14100 2.1320 $78,590 $167.55
2025SOCIAL SERVICESMCSS14100 1.6860 $69,670 $117.46
2025UTE WATER CONSERVANCYUTE14100 0.0000 $69,670 $0.00
 Tax Authority Contact Information Total Mill: 65.3660 Total Tax: $4,930.63

Sales & Conveyance Information **

DatePriceReception Number
(Click for Recorded Document)
Document Type
11/30/2021$0.003009884COV_DEC_BYLAWS
10/14/2021$0.003003788STMT_AUTHORITY
9/2/2020 2940851POA
9/2/2020 2940850POA
9/2/2020 2940849STMT_AUTHORITY
9/2/2020$95,000.002940848SWD
7/6/2018$0.002846570COV_DEC_BYLAWS
7/6/2018$0.002846569Plat
  Search Clerk RecordsDocument Type Descriptions

Land Description

Property Use CodeProperty Use TypeUnits
1112 SINGLE FAMILY RESIDENTIAL LAND 1
  Approximate Acres: 0.19 (Acreage is approximate and should not be used in lieu of Legal Documents)  

One Photo Available

Loading Picture...

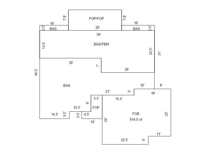
Building Sketch 1 of 1

Building Sketch 1

Loading Sketch...
  • Base Area(BAS) = 2059.8 sq.ft.
  • Fin Basement(FBM) = 938 sq.ft.
  • Finished Garage(FGR) = 814 sq.ft.
  • Finished Open Porch(FOP) = 599 sq.ft.
Building IDMOD998S79.1735714800000
Model Description:Residential
Building Use:SFR & TOWNHOUSE (1212)
Units:1
Arch Desc:RANCH WITH BSMT
Quality:ABOVE AVERAGE
Actual Year Built:2021
Effective Year Built:2021
Rooms:7
Bedrooms:5
Bathrooms:2 1/2 BATH
Heat Type:FORCED AIR HEAT
Heat Fuel:GAS
Heated SQ. FT.:2998
Air Conditioning:CENTRAL AIR
Frame:WOOD FRAME
Interior Wall:DRYWALL
Exterior Wall:STUCCO
Roof Cover:ASPH/COMP SHNGL
Roof Structure:GABLE OR HIP
Style:SFR
Stories:1
Comm. Wall Height:N/A
Comm. Fixtures:N/A

Miscellaneous Building Information

Year BuiltMiscellaneous DescriptionLength (ft.)Width (ft.)Units or Sq. Ft.
2021FIREPLACE-GAS LOG  1
Miscellaneous items above are not tied to a specific building

Historical Information