• Brent Goff, Assessor
  • Real Property Record
  • P.O. Box 20,000
  • 544 Rood Avenue
  • Grand Junction, CO 81502
This is an image of the Mesa County Logo with a picture of a monument Mesa County Home Page

Mesa County Assessor - Real Property Public Information Retrieval

Brent Goff, Assessor dataview Updated: 4/3/2026

Property Information(Report Date: 4/4/2026)


Parcel Number: 2943-302-51-002
Account Number: R101610
Property Use: Residential
Location Address: 265 ARLINGTON DR
GRAND JUNCTION, CO 81503
Mailing Address: 265 ARLINGTON DR
GRAND JUNCTION, CO 81503
Owner Name(s): CHOUDHARY TEHMINA
Joint Owner TRAMMELL KIMBER
Neighborhood: Village 9 & Meadows (18.56)
Associated Parcel: N/A
Previous Parcel: 294330228090
Approx. Latitude: 39.044395
Approx. Longitude: -108.529049
Date of Aerial Photo: 2019 & 2024

Legal Description

LOT 2 ARLINGTON SUBDIVISION RN 2894361 SEC 30 1S 1E UM - 0.20AC

Tax Information

YearProperty CodeLand ActualImprovements ActualTotal ActualTotal Assessed (School)Total Assessed (Non-School)TAC CodeMill Levy (School)Mill Levy (Non-School)Total Mill LevyWater AssessmentProperty Tax & Water
20251112, 1212$113,750$329,270$443,020$31,230$27,6901410042.218023.148065.3660$195.72$2,155.16
20241112, 1212$90,510$253,050$343,560N/A$23,01014100N/AN/A69.3550$181.72$1,777.58

Taxing Authority Detail

YearAgency NameAgency Abbrev.TAC CodeMill LevyTotal (Assessed)Tax Per Agency
2025CITY OF GRAND JUNCTIONGRJCT14100 8.0000 $27,690 $221.52
2025COLORADO RIVER WATER CONSERVATIONCOLRW14100 0.5020 $27,690 $13.90
2025COUNTY - DEVELOP DISABLEDMCCCB14100 0.2190 $27,690 $6.06
2025COUNTY CAPITAL EXPEND (INACTIVE)MCCAP14100 0.0000 $27,690 $0.00
2025COUNTY GENERAL FUNDMCGF14100 8.3130 $27,690 $230.19
2025COUNTY LEASE-PURCHASE JAIL (INACTIVE)MCLP14100 0.0000 $27,690 $0.00
2025COUNTY ROAD & BRIDGE-1/2 LEVYMCRBS14100 0.1370 $27,690 $3.79
2025COUNTY TRANSLATOR TV FUNDMCTV14100 0.0280 $27,690 $0.78
2025GRAND RIVER MOSQUITO CTRLGRMCD14100 1.1820 $27,690 $32.73
2025LIBRARY DISTRICTLIBR14100 2.9440 $27,690 $81.52
2025MESA CNTY ROAD & BRIDGE-GRAND JCTGJRB14100 0.1370 $27,690 $3.79
2025MESA COUNTY MCCNT14100 0.0000 $27,690 $0.00
2025SCHOOL DIST# 51 2004 OVERIDSD51O0614100 1.3270 $31,230 $41.44
2025SCHOOL DIST# 51 2017 OVERRIDESD51O_1714100 0.0000 $31,230 $0.00
2025SCHOOL DIST# 51 2024 OVERRIDESD51O_2414100 2.1570 $31,230 $67.36
2025SCHOOL DIST# 51 BONDSD51B14100 9.4760 $31,230 $295.94
2025SCHOOL DIST# 51 GENERALSD5114100 27.1260 $31,230 $847.14
2025SCHOOL DIST# 51 OVERRIDE 96SD51O14100 2.1320 $31,230 $66.58
2025SOCIAL SERVICESMCSS14100 1.6860 $27,690 $46.69
2025UTE WATER CONSERVANCYUTE14100 0.0000 $27,690 $0.00
 Tax Authority Contact Information Total Mill: 65.3660 Total Tax: $2,155.16

Sales & Conveyance Information **

DatePriceReception Number
(Click for Recorded Document)
Document Type
2/14/2024$423,000.003085547SWD JT
9/9/2021$349,000.002998764SWD JT
9/9/2021$0.002998763QCD_CORR
7/15/2021$0.002990603QCD TC
11/18/2020$0.002953124QCD JT
11/4/2020$0.002950907Quit Claim Deed
3/3/2020$192,000.002915744Warranty Deed
1/31/2020$0.002911891EXCLUSION
9/9/2019$0.002894361Plat
4/8/2019$0.002875467ANNEX
4/30/2018$0.002838675STMT_AUTHORITY
4/16/2018$0.002837091STMT_AUTHORITY
9/1/2015$0.002736004STMT_AUTHORITY
  PERMIT
  Search Clerk RecordsDocument Type Descriptions

Land Description

Property Use CodeProperty Use TypeUnits
1112 SINGLE FAMILY RESIDENTIAL LAND 1.75
  Approximate Acres: 0.2 (Acreage is approximate and should not be used in lieu of Legal Documents)  

Photo 1 of 5

Loading Picture...

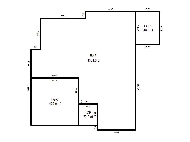
Building Sketch 1 of 1

Building Sketch 1

Loading Sketch...
  • Base Area(BAS) = 1551 sq.ft.
  • Finished Garage(FGR) = 400 sq.ft.
  • Finished Open Porch(FOP) = 212 sq.ft.
Building IDMOD988S258.1747666510253
Model Description:Residential
Building Use:SFR & TOWNHOUSE (1212)
Units:N/A
Arch Desc:RANCH
Quality:AVERAGE
Actual Year Built:2021
Effective Year Built:2021
Rooms:3
Bedrooms:3
Bathrooms:1 3/4 BATH
Heat Type:FORCED AIR HEAT
Heat Fuel:GAS
Heated SQ. FT.:1551
Air Conditioning:CENTRAL AIR
Frame:WOOD FRAME
Interior Wall:DRYWALL
Exterior Wall:STUCCO
Roof Cover:ASPH/COMP SHNGL
Roof Structure:GABLE OR HIP
Style:SFR
Stories:1
Comm. Wall Height:N/A
Comm. Fixtures:N/A

There are no Miscellaneous items associated with this record

Historical Information