• Brent Goff, Assessor
  • Real Property Record
  • P.O. Box 20,000
  • 544 Rood Avenue
  • Grand Junction, CO 81502
This is an image of the Mesa County Logo with a picture of a monument Mesa County Home Page

Mesa County Assessor - Real Property Public Information Retrieval

Brent Goff, Assessor dataview Updated: 4/2/2026

Property Information(Report Date: 4/3/2026)


Parcel Number: 2697-092-83-014
Account Number: R101626
Property Use: Townhouse
Location Address: 1230 PERIWINKLE CT
FRUITA, CO 81521
Mailing Address: 1230 PERIWINKLE CT
FRUITA, CO 81521
Owner Name(s): YOUNG SUSAN
Joint Owner
Neighborhood: T-Village @ Country Cr (67.11)
Associated Parcel: N/A
Previous Parcel: 269709281013
Approx. Latitude: 39.175615
Approx. Longitude: -108.714146
Date of Aerial Photo: 2019 & 2024

Legal Description

UNIT 6-14 IN LOT 1 BLOCK 2 VILLAGE AT COUNTRY CREEK FILING SIX SEC 9 1N 2W UM PLAT RECORDED AT RECPT NO 2892987 ACCORDING TO THE COMMON INTEREST COMMUNITY MAP OF FILING SIX VILLAGE AT COUNTRY CREEK RECORDED AT RECEPTION NO 2892989 MESA CO RECDS - 2244 SF

Tax Information

YearProperty CodeLand ActualImprovements ActualTotal ActualTotal Assessed (School)Total Assessed (Non-School)TAC CodeMill Levy (School)Mill Levy (Non-School)Total Mill LevyWater AssessmentProperty Tax & Water
20251112, 1212$81,000$312,710$393,710$27,760$24,6001160042.218035.701077.9190$0.00$2,050.22
20241112, 1212$44,160$109,120$153,280N/A$10,27011600N/AN/A82.0050$0.00$842.19

Taxing Authority Detail

YearAgency NameAgency Abbrev.TAC CodeMill LevyTotal (Assessed)Tax Per Agency
2025CITY OF FRUITAFRUIT11600 10.1460 $24,600 $249.59
2025COLORADO RIVER WATER CONSERVATIONCOLRW11600 0.5020 $24,600 $12.35
2025COUNTY - DEVELOP DISABLEDMCCCB11600 0.2190 $24,600 $5.39
2025COUNTY CAPITAL EXPEND (INACTIVE)MCCAP11600 0.0000 $24,600 $0.00
2025COUNTY GENERAL FUNDMCGF11600 8.3130 $24,600 $204.50
2025COUNTY LEASE-PURCHASE JAIL (INACTIVE)MCLP11600 0.0000 $24,600 $0.00
2025COUNTY ROAD & BRIDGE-1/2 LEVYMCRBS11600 0.1370 $24,600 $3.37
2025COUNTY TRANSLATOR TV FUNDMCTV11600 0.0280 $24,600 $0.69
2025ELMWOOD CEMETERY DISTRICTECD11600 0.3970 $24,600 $9.77
2025GRAND RIVER MOSQUITO CTRLGRMCD11600 1.1820 $24,600 $29.08
2025GRAND VALLEY DRAINAGE DISTGVDD11600 1.6710 $24,600 $41.11
2025LIBRARY DISTRICTLIBR11600 2.9440 $24,600 $72.42
2025LOWER VALLEY FIRE PROTECTLVFD11600 8.3390 $24,600 $205.14
2025MESA CNTY ROAD & BRIDGE-FRUITAFRRB11600 0.1370 $24,600 $3.37
2025MESA COUNTY MCCNT11600 0.0000 $24,600 $0.00
2025SCHOOL DIST# 51 2004 OVERIDSD51O0611600 1.3270 $27,760 $36.84
2025SCHOOL DIST# 51 2017 OVERRIDESD51O_1711600 0.0000 $27,760 $0.00
2025SCHOOL DIST# 51 2024 OVERRIDESD51O_2411600 2.1570 $27,760 $59.88
2025SCHOOL DIST# 51 BONDSD51B11600 9.4760 $27,760 $263.05
2025SCHOOL DIST# 51 GENERALSD5111600 27.1260 $27,760 $753.02
2025SCHOOL DIST# 51 OVERRIDE 96SD51O11600 2.1320 $27,760 $59.18
2025SOCIAL SERVICESMCSS11600 1.6860 $24,600 $41.48
2025UTE WATER CONSERVANCYUTE11600 0.0000 $24,600 $0.00
 Tax Authority Contact Information Total Mill: 77.9190 Total Tax: $2,050.22

Sales & Conveyance Information **

DatePriceReception Number
(Click for Recorded Document)
Document Type
2/27/2026$445,000.003151483SWD
2/14/2024$395,400.003085549Warranty Deed
3/16/2020$0.002917330RESOLUTION
8/29/2019$0.002892989Plat
8/29/2019$0.002892987Plat
7/29/2004 2205073STMT_AUTHORITY
  Search Clerk RecordsDocument Type Descriptions

Land Description

Property Use CodeProperty Use TypeUnits
1112 SINGLE FAMILY RESIDENTIAL LAND 1
  Approximate Acres: 0.05 (Acreage is approximate and should not be used in lieu of Legal Documents)  

Photo 1 of 3

Loading Picture...

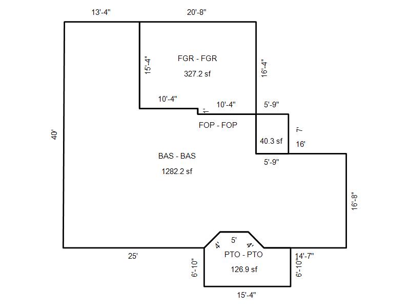
Building Sketch 1 of 1

Building Sketch 1

Loading Sketch...
  • Base Area(BAS) = 1282.2 sq.ft.
  • Finished Garage(FGR) = 327.2 sq.ft.
  • Finished Open Porch(FOP) = 40.3 sq.ft.
  • Patio(PTO) = 126.9 sq.ft.
Building IDMOD1086S25.1773935989873
Model Description:Residential
Building Use:SFR & TOWNHOUSE (1212)
Units:1
Arch Desc:TOWNHSE 1-Sty
Quality:AVERAGE
Actual Year Built:2023
Effective Year Built:2023
Rooms:5
Bedrooms:2
Bathrooms:1 3/4 BATH
Heat Type:FORCED AIR HEAT
Heat Fuel:GAS
Heated SQ. FT.:1282
Air Conditioning:CENTRAL AIR
Frame:WOOD FRAME
Interior Wall:DRYWALL
Exterior Wall:ALUM/VINYL SID
Roof Cover:ASPH/COMP SHNGL
Roof Structure:GABLE OR HIP
Style:SFR
Stories:1
Comm. Wall Height:N/A
Comm. Fixtures:N/A

Miscellaneous Building Information

Year BuiltMiscellaneous DescriptionLength (ft.)Width (ft.)Units or Sq. Ft.
2023FIREPLACE-GAS LOG  1
Miscellaneous items above are not tied to a specific building

Historical Information