• Brent Goff, Assessor
  • Real Property Record
  • P.O. Box 20,000
  • 544 Rood Avenue
  • Grand Junction, CO 81502
This is an image of the Mesa County Logo with a picture of a monument Mesa County Home Page

Mesa County Assessor - Real Property Public Information Retrieval

Brent Goff, Assessor dataview Updated: 1/6/2026

Property Information(Report Date: 1/7/2026)


Parcel Number: 2943-044-86-023
Account Number: R103442
Property Use: Residential
Location Address: 3086 THUNDER CLOUD DR
GRAND JUNCTION, CO 81504
Mailing Address: 3086 THUNDER CLOUD DR
GRAND JUNCTION, CO 81504
Owner Name(s): BREIDEL PATRICK D JR
Joint Owner BREIDEL KELSI R
Neighborhood: Thunder Valley (300.07)
Associated Parcel: N/A
Previous Parcel: 294304484099
Approx. Latitude: 39.096047
Approx. Longitude: -108.480930
Date of Aerial Photo: 2019 & 2024

Legal Description

LOT 23 THUNDER VALLEY SUBDIVISION FILING TWO PER PLAT AT RN 2991034 RECD 07/19/2021 MESA CO RECDS SEC 4 1S 1E UM - 0.21AC

Tax Information

YearProperty CodeLand ActualImprovements ActualTotal ActualTotal Assessed (School)Total Assessed (Non-School)TAC CodeMill Levy (School)Mill Levy (Non-School)Total Mill LevyWater AssessmentProperty Tax & Water
20251112, 1212$88,000$425,100$513,100$36,170$32,0701610942.218024.819067.0370$0.00$2,322.97
20241112, 1212$76,130$309,060$385,190N/A$25,81016109N/AN/A71.1310$50.00$1,885.89
20231112, 1212$76,130$309,060$385,190N/A$25,81016109N/AN/A70.7020$44.00$1,868.82

Taxing Authority Detail

YearAgency NameAgency Abbrev.TAC CodeMill LevyTotal (Assessed)Tax Per Agency
2025CITY OF GRAND JUNCTIONGRJCT16109 8.0000 $32,070 $256.56
2025CLIFTON WATER DISTRICTCWD16109 0.0000 $32,070 $0.00
2025COLORADO RIVER WATER CONSERVATIONCOLRW16109 0.5020 $32,070 $16.10
2025COUNTY - DEVELOP DISABLEDMCCCB16109 0.2190 $32,070 $7.02
2025COUNTY CAPITAL EXPEND (INACTIVE)MCCAP16109 0.0000 $32,070 $0.00
2025COUNTY GENERAL FUNDMCGF16109 8.3130 $32,070 $266.60
2025COUNTY LEASE-PURCHASE JAIL (INACTIVE)MCLP16109 0.0000 $32,070 $0.00
2025COUNTY ROAD & BRIDGE-1/2 LEVYMCRBS16109 0.1370 $32,070 $4.39
2025COUNTY TRANSLATOR TV FUNDMCTV16109 0.0280 $32,070 $0.90
2025GRAND RIVER MOSQUITO CTRLGRMCD16109 1.1820 $32,070 $37.91
2025GRAND VALLEY DRAINAGE DISTGVDD16109 1.6710 $32,070 $53.59
2025LIBRARY DISTRICTLIBR16109 2.9440 $32,070 $94.41
2025MESA CNTY ROAD & BRIDGE-GRAND JCTGJRB16109 0.1370 $32,070 $4.39
2025MESA COUNTY MCCNT16109 0.0000 $32,070 $0.00
2025SCHOOL DIST# 51 2004 OVERIDSD51O0616109 1.3270 $36,170 $48.00
2025SCHOOL DIST# 51 2017 OVERRIDESD51O_1716109 0.0000 $36,170 $0.00
2025SCHOOL DIST# 51 2024 OVERRIDESD51O_2416109 2.1570 $36,170 $78.02
2025SCHOOL DIST# 51 BONDSD51B16109 9.4760 $36,170 $342.75
2025SCHOOL DIST# 51 GENERALSD5116109 27.1260 $36,170 $981.15
2025SCHOOL DIST# 51 OVERRIDE 96SD51O16109 2.1320 $36,170 $77.11
2025SOCIAL SERVICESMCSS16109 1.6860 $32,070 $54.07
2025UTE WATER CONSERVANCYUTE16109 0.0000 $32,070 $0.00
 Tax Authority Contact Information Total Mill: 67.0370 Total Tax: $2,322.97

Sales & Conveyance Information **

DatePriceReception Number
(Click for Recorded Document)
Document Type
6/22/2023$0.003067159RATIFICATION
11/3/2022$539,000.003048570Warranty Deed JT
11/3/2022$0.003048569STMT_AUTHORITY
10/28/2022$0.003048030RATIFICATION
2/9/2022$84,400.003019287Warranty Deed
9/2/2021$330,000.002997751Warranty Deed
7/19/2021$0.002991038ESMT_ROW
7/19/2021$0.002991037AFF_CORR
7/19/2021$0.002991036COV_DEC_BYLAWS
7/19/2021$0.002991034Plat
6/5/2018$0.002842834STMT_AUTHORITY
  Search Clerk RecordsDocument Type Descriptions

Land Description

Property Use CodeProperty Use TypeUnits
1112 SINGLE FAMILY RESIDENTIAL LAND 1
  Approximate Acres: 0.21 (Acreage is approximate and should not be used in lieu of Legal Documents)  

One Photo Available

Loading Picture...

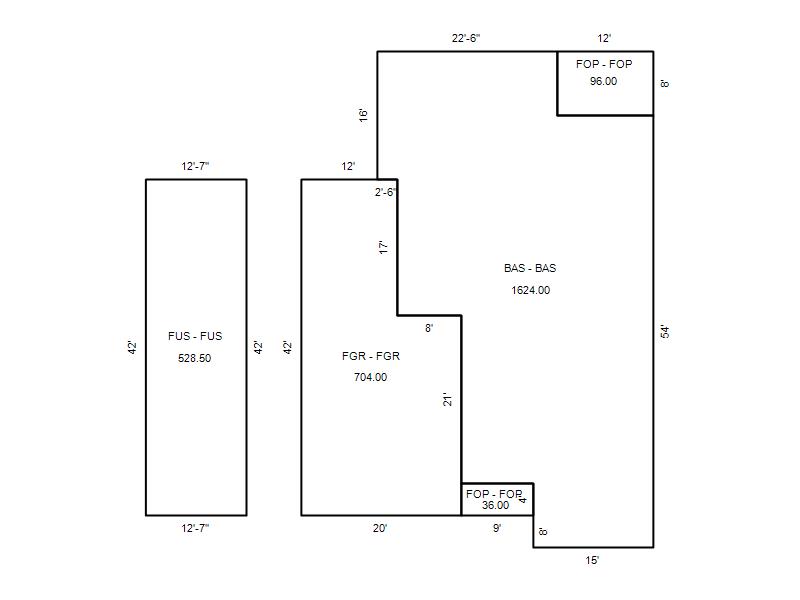
Building Sketch 1 of 1

Building Sketch 1

Loading Sketch...
  • Base Area(BAS) = 1624 sq.ft.
  • Finished Garage(FGR) = 704 sq.ft.
  • Finished Open Porch(FOP) = 132 sq.ft.
  • Finished Upper Story(FUS) = 528.5 sq.ft.
Building IDMOD1037S396.1735714800011
Model Description:Residential
Building Use:SFR & TOWNHOUSE (1212)
Units:1
Arch Desc:RANCH
Quality:ABOVE AVERAGE
Actual Year Built:2022
Effective Year Built:2022
Rooms:8
Bedrooms:5
Bathrooms:2 3/4 BATH
Heat Type:FORCED AIR HEAT
Heat Fuel:GAS
Heated SQ. FT.:2153
Air Conditioning:CENTRAL AIR
Frame:WOOD FRAME
Interior Wall:DRYWALL
Exterior Wall:STUCCO
Roof Cover:ASPH/COMP SHNGL
Roof Structure:GABLE OR HIP
Style:SFR
Stories:1.4
Comm. Wall Height:N/A
Comm. Fixtures:N/A

There are no Miscellaneous items associated with this record

Historical Information